Somogy megye, Somogyszentpál
 

Ingatlan adatai
Irányár: 62 169 000 Ft
Típus: ház
Kategória: eladó
Alapterület: 160 m2
Fűtés: gáz (cirko)
Állapota: -
Szobák száma: 6
Építés éve: -
Szintek száma: -
Részletes leírás
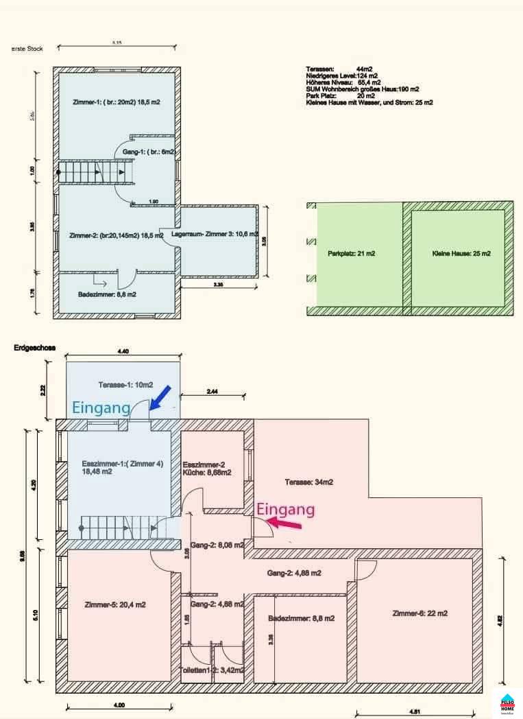
Vidéki idill egy kőhajitásra a Balatontól!1.Magyar leírás2.Deutsch beschreibung1. Somogyszentpál csendes településén eladó ez 160m2-es, 6 szobás kiváló állapotú, tágas családi ház!Az ingatlan egy forgalommentes zsákutcában található egy 2730m2-es széles teljesen privát telken. A ház teljes közművel ellátott (viz, gáz, áram, csatorna, internet, tv).Száraz és repedésmentes tégla falazat, minőségi nyílászárók és redőnyök, gáz központi fűtés és meleg víz ellátás Vaillant kazánnal, modern áram és viz hálózat, cserép tető, igényes burkolatok kint és bent valamint sok-sok fa ami igazán otthonos érzést biztosit!Az alsó szinten (99,2m2) nagyméretű Nappali és külön hálószoba, étkező, közlekedő, teljesen felszerelt modern konyha, hatalmas fürdőszoba sarokkáddal és zuhanyzóval, két külön WC és összesen 40m2 fedett terasz is megtalálható ami a maximális kényelmet szolgálja. A fenti részben a natúr fa burkolatok igazán meghatározók. Itt két nagy külön nyíló hálószoba, fürdőszoba zuhannyal,WC-vel és sok pakolóhellyel, iroda sarok és egy további helyiség ami lehet a gyerekek birodalma vagy egy jóga/hobbiszoba is. Az alsó és felső lakrész két külön bejáraton is megközelíthető igy teljesen elszeparálható egymástól. A telek kb 800m2-en teljesen körbekeritett, kút, autóbeálló ahova a lakóautó is könnyen elfér, Műhely (25m2) viz és villany csatlakozással és nyugodt biztonságos környezet ahova a szomszéd nem lát be :)A telek hátsó része művelés alatt, a végén pedig kis patak folyik. Igényes ház pár percre a Balatontól. Keressen a részletekért!2.Ländliche Idylle in unmittelbarer Nähe des Balaton!Dieses 160 m² große, 6-Zimmer-Einfamilienhaus in exzellentem Zustand steht im ruhigen Dorf Somogyszentpál zum Verkauf! Das Anwesen befindet sich in einer verkehrsberuhigten Sackgasse auf einem 2730 m² großen, absolut privaten Grundstück. Das Haus ist komplett ausgestattet (Wasser, Gas, Strom, Abwasser, Internet, TV). Trockenes und rissfreies Mauerwerk, hochwertige Fenster und Rollläden, Gaszentralheizung und Warmwasserversorgung mit einem Vaillant-Brennwertkessel, modernes Strom- und Wassernetz, Ziegeldach, hochwertige Innen- und Außenverkleidung sowie viel Holz sorgen für ein behagliches Wohngefühl! Im Erdgeschoss (99,2 m²) befinden sich ein großes Wohnzimmer, ein separates Schlafzimmer, ein Esszimmer, ein Flur, eine voll ausgestattete, moderne Küche, ein geräumiges Badezimmer mit Eckbadewanne und Dusche, zwei separate WCs sowie eine 40 m² große, überdachte Terrasse, die maximalen Komfort bietet. Im Obergeschoss prägen die natürlichen Holzverkleidungen das Ambiente. Hier befinden sich zwei große, separate Schlafzimmer, ein Badezimmer mit Dusche, WC und viel Stauraum, eine Büroecke sowie ein zusätzlicher Raum, der als Kinderzimmer oder Yoga-/Hobbyraum genutzt werden kann. Die beiden Wohnbereiche sind über separate Eingänge zugänglich und somit vollständig voneinander getrennt. Von dem 2730 m² großen Grundstück sind ca. 800 m² komplett eingezäunt. Außerdem gibt es einen Brunnen, einen Parkplatz, auf dem auch ein Wohnmobil problemlos Platz findet, eine 25 m² große Werkstatt mit Wasser- und Stromanschluss sowie eine ruhige, sichere Umgebung, in der der Nachbar nicht hineinsehen kann. Der hintere Teil des Grundstücks wird landwirtschaftlich genutzt, und am Ende fließt ein kleiner Bach.Ein elegantes Haus nur wenige Minuten vom Balaton entfernt. Weitere Informationen finden Sie hier!IRODÁNK MARCALIBAN TALÁLHATÓ,AHOL TELJES KÖRŰ ÜGYINTÉZÉSSEL VÁRJUK ÜGYFELEINKET!NÉMET, OLASZ és ANGOL NYELVTUDÁSUNKNAK KÖSZÖNHETŐEN NYITOTTAK VAGYUNK A KÜLFÖLDI ÜGYFELEK FELÉ IS,KÜLFÖLDI PARTNERKAPCSOLATTAL ÉS HIRDETÉSI FELÜLETEKKEL RENDELKEZÜNK. ENERGETIKAI TANÚSÍTVÁNY, JOGI HÁTTÉR,LAKOSSÁGI ÉS VÁLLALATI ÉRTÉKBECSLÉS! KERESSEN MINKET!
További adatok
Telekterület: 2 730 m2
Kert mérete: 2 730 m2
Erkély mérete: 44 m2
Felszereltség: -
Parkolás: -
Kilátás: -
Egyéb extrák:  
-
Hirdető adatai
Hirdető neve: Kása Tibor Milán
Hirdető telefonszáma: +36705913447