Budapest, XVII.kerület
 

Ingatlan adatai
Irányár: 62 900 000 Ft
Típus: lakás (panel)
Kategória: eladó
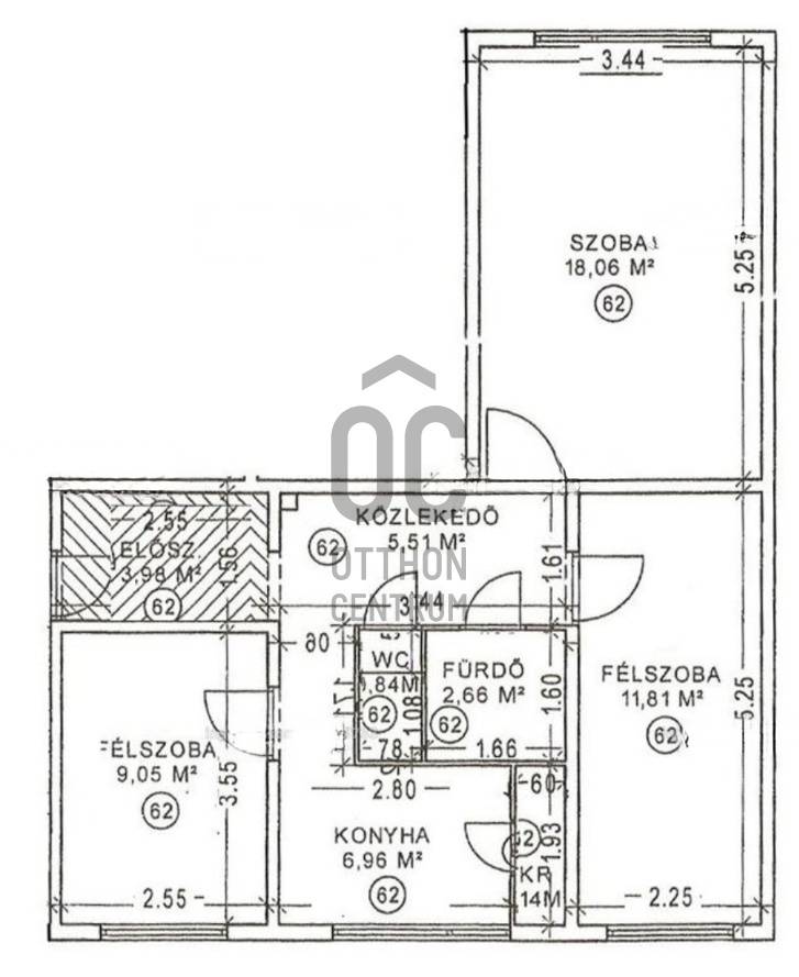
Alapterület: 60 m2
Fűtés: házközponti fűtés
Állapota: -
Szobák száma: 3
Építés éve: 1980
Szintek száma: -
Részletes leírás
A XVII. kerület kedvelt részén, zöld környezetben, jó elosztású 60 m²-es, 1+2 félszobás, világos, praktikus elosztású lakás eladó a közkedvelt Kaszáló utcában, parkos, nyugodt környezetben –a Rákos-patak közvetlen közelében. Az ingatlan egy 4 emeletes, folyamatosan karbantartott társasház 3. emeletén található. Minden helyisége világos, az ablakok zöld parkra néznek, így a lakás kifejezetten csendes és kellemes hangulatú.Fontos kiemelni, hogy a lakás műszakilag több ponton korszerűsített, ugyanakkor esztétikai felújítást igényel, így új tulajdonosa teljes mértékben saját ízlésére formálhatja.Főbb jellemzők:-60 m² alapterület-1 + 2 félszoba-praktikus, jól átgondolt elrendezés-világos, parkra néző hálószobák-utcai nézetű nappaliFelújítások, korszerűsítések:-2012-ben műanyag nyílászárók (redőnnyel, szúnyoghálóval)-radiátorcsere-fürdőszobában vízhálózat felújítása-biztonsági bejárati ajtó okos zárral és kamerával-2 db, kb. 2 éves (még garanciális) klíma a hálószobákbanFenntartása kedvező, fűtése nyári időszakban kb. 5–6.000 Ft, télen max. 20–25.000 Ftközös költség: 12.600 Ft/hó(tartalmazza a szemétszállítást, lépcsőháztakarítást és a felújítási alapot)A társasház egy folyamatosan karbantartott épület, tiszta, rendezett lépcsőház, kulturált lakóközösségA pinceszinten található egy 16 m²-es tároló (3 lakás közös használatában)Teljes körű infrastruktúra a közelben. Ajánlom mindazoknak, akik nyugodt, zöld környezetben keresnek otthont, és szeretnék saját elképzeléseik szerint kialakítani új lakásukat.Amennyiben felkeltette érdeklődését, keressen bizalommal a hét bármely napján. Szívesen megmutatom személyesen is, és minden felmerülő kérdésére válaszolok.
További adatok
Telekterület: -
Kert mérete: -
Erkély mérete: -
Felszereltség: -
Parkolás: -
Kilátás: utcai
Egyéb extrák:  
-
Hirdető adatai
Hirdető neve: Otthon Centrum
Hirdető telefonszáma: +36 70 469 3161