Pest megye, Dömsöd
 

Ingatlan adatai
Irányár: 64 900 000 Ft
Típus: ház
Kategória: eladó
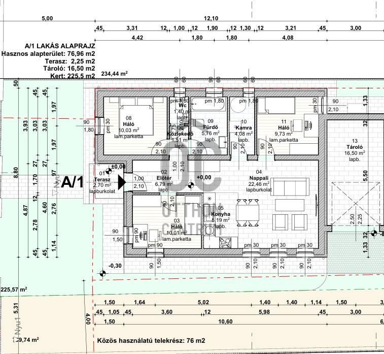
Alapterület: 77 m2
Fűtés: -
Állapota: új
Szobák száma: 4
Építés éve: 2026
Szintek száma: -
Részletes leírás
Dömsödön eladó• újépítésű• ikerház első része• nettó 76,96m2, bruttó 93,46 m2• amerikai konyhás nappali + 3 hálószoba• fűtés: hőszivattyú + padlófűtés• 15 cm grafitos szigetelés• gres kerámia és laminált parketta • telek: 225,5 m2• terasz: 2,7 m2
További adatok
Telekterület: 226 m2
Kert mérete: 226 m2
Erkély mérete: 3 m2
Felszereltség: -
Parkolás: -
Kilátás: -
Egyéb extrák:  
-
Hirdető adatai
Hirdető neve: Otthon Centrum
Hirdető telefonszáma: +36 70 469 3111