Pest megye, Vecsés
 

Ingatlan adatai
Irányár: 74 990 000 Ft
Típus: lakás (újépítésű)
Kategória: eladó
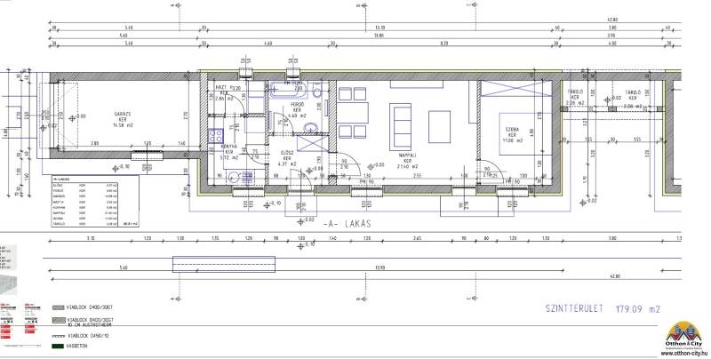
Alapterület: 63 m2
Fűtés: -
Állapota: új
Szobák száma: 2
Építés éve: 2026
Szintek száma: -
Részletes leírás
CSAK NÁLUNK!ÚJ ÉPÍTÉSŰ IKERHÁZAK VECSÉSEN – MODERN OTTHON NYUGALOMBAN, KIVÁLÓ HELYEN!Elhelyezkedés: Vecsés, a közkedvelt Kis-Patak lakópark közvetlen szomszédságában.Ingatlantípus: Új építésű ikerházfél – NINCS áthallás! Csak a földszinti tárolónál kapcsolódik a két ház.Az ár a 2 szobás ikerházfél, kulcsrakész állapotára vonatkozik és még igény szerint alakítható a belső tér !Állapot: 30%Alapterület: 63 m²Telek: 200 m² saját kertMiért épp EZ az otthon?Ha Ön is egy modern, energiatakarékos és családbarát környezetre vágyik, ne keressen tovább! Ez az otthon ideális választás kisebb családoknak, fiatal pároknak, de akár befektetőknek is. A környék infrastruktúrája kiváló, a zöldövezet pedig nyugalmat biztosít a mindennapokhoz.Elrendezés – minden helyiség jól kihasznált és élhetőAmerikai konyhás nappaliakár 2 különálló hálószobaFürdőszobaElőszobaKözvetlen kijárat a teraszraFelszereltség és extrák – prémium minőség, rugalmas kialakításHőszivattyús padlófűtés minden helyiségbenHűtő-fűtő klímaBeépített garázs3 rétegű, 5 légkamrás nyílászárókEgyedi igényekre szabható burkolatok:– Meleg burkolatok: 6.000 Ft/m²-ig választhatók– Hidegburkolatok: 6.000 Ft/m²-ig választhatók– Fürdőszobai szaniterek: akár 300.000 Ft értékig-- Beltéri ajtók 60000 ft értékig szabadon választhatóKiknek ajánljuk?Családoknak – sok szoba, biztonságos, nyugodt környékFiatal pároknak – modern otthon, kiváló indulásBefektetőknek – keresett lokáció, gyorsan kiadhatóNe maradjon le erről a kivételes lehetőségről!További információért, árért és időpontért várom megkeresését!Hitel esetén díjmentes ügyintézés. Összes bank ajánlata egy helyen, kedvezményekkel.Nem adta el ingatlanát? NE ADJA EL PIACI ÁR ALATT! Segítünk. Minden ügyfelünknek ingyenes felmérjük az otthonát! Hívjon vagy írjon, a további információkért
További adatok
Telekterület: -
Kert mérete: -
Erkély mérete: -
Felszereltség: -
Parkolás: -
Kilátás: kertre néző
Egyéb extrák:  
-
Hirdető adatai
Hirdető neve: Otthon & City ingatlan iroda
Hirdető telefonszáma: +36708507198