Budapest, III.kerület
Csillaghegy 

Ingatlan adatai
Irányár: 69 900 000 Ft
Típus: ház
Kategória: eladó
Alapterület: 60 m2
Fűtés: gáz (konvektor)
Állapota: -
Szobák száma: 2
Építés éve: 1960
Szintek száma: -
Részletes leírás
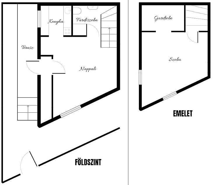
Csillaghegyen ELADÓ egy 60 négyzetméteres KERTKAPCSOLATOS házrész!Az ingatlan 2 szintes elosztású, a földszinten a nappali, konyha és a fürdő található, az emeleten pedig egy tágas szoba gardróbbal.A házrészhez tartozik 9 négyzetméteres terasz.A szobákban fa parketta, a vizes helyiségekben és a földszinten pedig járólap burkolat található.A fűtést gázkonvektorok biztosítják, valamint klíma is be van szerelve mindkét szinten.A nyílászárok műanyag thermo üvegesek.A házrész megosztási szerződéssel van jogilag elkülönítve.Környékről:Közelben minden olyan szolgálatás megtalálható amire szüksége lehet a mindennapokban (kisebb élelmiszer boltok, piac, éttermek, gyógyszertárak). Gyerekes családoknak nagyon ideális hiszen játszóterek, Óvoda, Iskola, Egyetem van a közelben.Tömegközlekedés szempontjából is tökéletes hiszen pár perc sétára található számos buszmegálló, illetve a H5-ös hév.Ha pedig kikapcsolódásra vágyik pár perc sétatávra elérhető a Duna part, ahol számos lehetőség van kikapcsolódni, sétálni, szórakozni.Tömegközlekedés szempontjából is tökéletes hiszen pár perc sétára található számos buszmegálló, illetve a H5-ös hév.PARKOLÁS A HÁZ ELŐTT ÉS KÖRNYÉKÉN INGYENES.FINANSZÍROZÁS:Banki finanszírozással is megvásárolható, melyben irodánk ingyenes tanácsadással áll rendelkezésükre!VEVŐINK RÉSZÉRE A KÖZVETÍTÉS DÍJTALAN!A beépített bútorzat a vételár részét képezi.A hirdetésben szereplő adatok tájékoztató jellegűek.
További adatok
Telekterület: 9 m2
Kert mérete: 9 m2
Erkély mérete: -
Felszereltség: -
Parkolás: -
Kilátás: -
Egyéb extrák:  
-
Hirdető adatai
Hirdető neve: MPD Hungary Kft.
Hirdető telefonszáma: +36704151112