Fejér megye, Lovasberény
 

Ingatlan adatai
Irányár: 55 000 000 Ft
Típus: telek
Kategória: eladó
Alapterület: 8 000 m2
Fűtés: -
Állapota: -
Szobák száma: -
Építés éve: -
Szintek száma: -
Részletes leírás
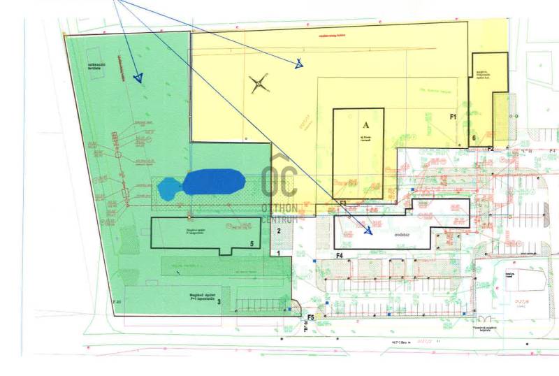
Lovasberény Lujza majorban található 8000 nm-es ipari-gazdasági övezetbe tartozó telek nem csupán egy terület, hanem egy lehetőség, hogy részesévé váljon a dinamikusan fejlődő szolgáltatói szektornak.Kiemelkedő lehetőség a területen elhelyezkedő, 500 nm-es, földszintes tégla épület, mely hasznosítása, előzetes tervek és egyeztetések alapján lehet Nyugdíjasház, Ápolási Otthon, vagy más szolgáltatóház, irodaház.Ehhez a csendes, zöld és biztonságos környezet fontos szempont lehet. Igény esetén, a tulajdonos átadja a meglévő épületre elkészített, 24 apartman egység kialakításáról szóló terveket, dokumentációkat.Telek jellemzői:-közművek: víz, csatorna, villany telken belül, gáz pedig az utcában,-sarok telek, mely egy nagyobb területből lesz kimérve, képen a zölddel jelölt rész,-GKSZ besorolása szerinti beépíthetősége 30 %, építmény magasság 13 m.Ugyanitt egymás mellett, még értékesítésre kerül egy nagyobb, 24000 nm-es telephely és az 1700 nettó nm alapterületű Innovatív, teljesen modernizált, több szintes, akadálymentesített Irodaház, és a hozzá tartozó terület.Székesfehérvár, M7 autópálya mindössze 15 percre elérhető. Bármilyen kérdése merülne fel a telekkel, a vásárlási folyamattal kapcsolatban, vagy az ön ingatlanát el kell adni a vásárláshoz, bizalommal kereshet.
További adatok
Telekterület: 8 000 m2
Kert mérete: -
Erkély mérete: -
Felszereltség: -
Parkolás: -
Kilátás: -
Egyéb extrák:  
-
Hirdető adatai
Hirdető neve: Otthon Centrum
Hirdető telefonszáma: +36 70 461 9031