Bács-Kiskun megye, Kecskemét
 

Ingatlan adatai
Irányár: 168 000 000 Ft
Típus: ház
Kategória: eladó
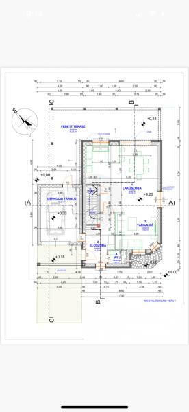
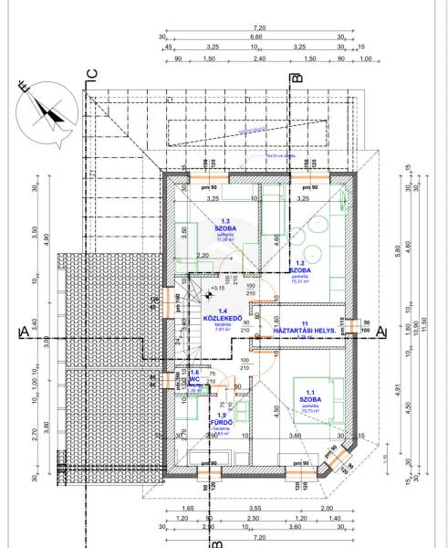
Alapterület: 145 m2
Fűtés: -
Állapota: -
Szobák száma: 4
Építés éve: 2024
Szintek száma: -
Részletes leírás
Az ingatlan 145 négyzetméter alapterületű, amelyben nappali + 3 tágas szoba és egy modern fürdőszoba található, ideális választás családok számára. A ház kiváló állapotban van, a hőszivattyús fűtés pedig nemcsak gazdaságos, hanem környezetbarát megoldást is kínál. A légkondicionálónak köszönhetően a nyári hőségben is kellemes klímát biztosít az otthonodban.Műszaki tartalom : •Padlófűtés minden helyiségben, a garázsban is•Hűtő–fűtő fan-coil rendszer minden szobában és a nappaliban•20 cm grafitos homlokzati hőszigetelés•Hővisszanyerős szellőztető rendszer•Háromrétegű üvegezésű, prémium Gelaan nyílászárók•Okos redőnyrendszer•Optikai, földkábeles üvegszálas internetA 45 négyzetméteres terasz a nyári estéken tökéletes helyszín lehet baráti összejövetelekhez vagy egy kellemes könyv olvasásához. A környék csendes és barátságos, ideális választás azok számára, akik szeretnék élvezni a természet közelségét, miközben a város nyújtotta lehetőségek is elérhetők. Hollandfalu tele van zöld területekkel, így a gyerekek biztonságosan játszhatnak a szabadban, míg a felnőttek a közeli szolgáltatásokban találhatják meg a mindennapi élethez szükségeseket. Boltok, éttermek és iskolák mind csupán pár percnyi távolságra találhatóak, így minden kéznél van, amire szükséged lehet.A közlekedés is kiváló, hiszen az autós megközelíthetőség egyszerű, a parkolóhely és a garázs is biztosítja a kényelmet. A tömegközlekedés szintén jól kiépített, így könnyedén eljuthatsz a város bármely pontjára, legyen szó munkáról vagy szabadidős programokról.Birtokba-adási idő: 2027.01.01.Ne habozz, hiszen ez a lehetőség gyorsan el fog fogyni! Ha kérdéseid vannak, vagy szeretnéd megtekinteni ezt a csodás ingatlant, keress bátran! Az otthonod csak rád vár!
További adatok
Telekterület: 488 m2
Kert mérete: 488 m2
Erkély mérete: 45 m2
Felszereltség: -
Parkolás: -
Kilátás: utcai
Egyéb extrák:  
-
Hirdető adatai
Hirdető neve: Új Otthon Ingatlan powered by RH
Hirdető telefonszáma: +36 70 412 5656