Pest megye, Diósd
 

Ingatlan adatai
Irányár: 299 000 000 Ft
Típus: kereskedelmi/ipari ingatlan
Kategória: eladó
Alapterület: 945 m2
Fűtés: -
Állapota: -
Szobák száma: -
Építés éve: -
Szintek száma: -
Részletes leírás
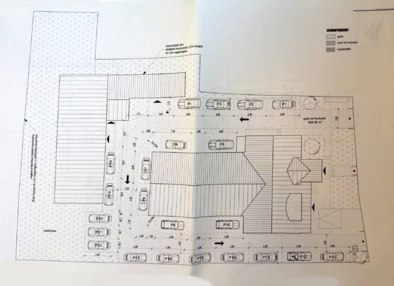
CSAK NÁLUNK! Diósdi iparterület egyik legjobban megközelíthető részén, az M0 autóút lehajtójától mindössze néhány percnyire található ez a több épületrészből álló, nagy kapacitású ipari‑kereskedelmi telephely amelyet eladásra kínálunk.A létesítmény egyetlen helyszínen biztosítja a raktározási, szerviz-, logisztikai és adminisztratív tevékenységek teljes körű hátterét.A területen 2 db. átgondolt elrendezésű épület garantálja a hatékony működést, amelyek átlátható folyamatokat és magas szintű üzemi rugalmasságot tesznek lehetővé.Felépítmények nettó hasznos alapterülete összesen: 945 m².Telek önálló helyrajzi számon van, területe összesen: 2394 m².A telephely korábban professzionális autószerelő és járműértékesítő központként működött, teljes körű műszaki infrastruktúrával, bemutatóteremmel, több szerelőállással, gépi szellőzéssel - kipufogógáz elvezetéssel, raktárakkal illetve alkatrészértékesítő helyiségekkel valamint iroda és lakórészekkel is rendelkezik.A meglévő kialakításnak köszönhetően az új tulajdonos számára továbbra is kiválóan alkalmas autószervizre, értékesítésre vagy bármilyen járműipari tevékenységre, ugyanakkor a terek méretezése és sokoldalúsága miatt más ipari, kereskedelmi vagy logisztikai profil is könnyedén megvalósítható.Az ingatlan jogi besorolása: \"Kivett üzletház, irodaépület, raktár udvar\" amely széles körű felhasználási lehetőséget biztosít, és jogilag is támogatja a többfunkciós működést.Raktárak és műhelyterek:A telephely több, különböző méretű raktárhelyiséggel és műhelyekkel rendelkezik, amelyeknek az összesített alapterülete közel 500 m².A kisebb, 45–50 m²-es egység ideális elkülönített tárolásra vagy speciális műhelyfeladatokra, míg a nagyobb, összesen közel 450 m²-es csarnokok ( 2 db. ) ipari szintű árukezelést, gépek elhelyezését vagy gyártási folyamatokat is kiszolgálnak.A raktárakhoz kapcsolódó teakonyha, mosdók, előtér és iroda biztosítja a napi működéshez szükséges háttérfunkciókat.A központi épület szervizrészlege kifejezetten járműjavításra kialakított területként funkcionált, ahol autó- és motorkerékpár-szerelő állások, gépészeti helyiségek, szellőzőrendszerek és hulladékkezelő pontok találhatók.A csarnokhoz öltözők, mosdók, kazánház és lépcsőház is kapcsolódik, így a szerviztevékenység minden feltétele adott.A csarnokok / telephely kamionnal is megközelíthetők, így logisztikai szempontból is kiemelkedően jól használhatók, ezt fontos kiemelni!Irodák és adminisztratív terek:A telephely irodai infrastruktúrája több szinten helyezkedik el.A földszinten a különböző helyiségekhez kapcsolódó kisebb irodák és személyzeti helyiségek találhatók, míg a tetőtérben igény esetén két \"különálló/leválasztató-szeparálható\" -de igény esetén mégis átjárható irodablokk kapott helyet.A két irodablokk külön-külön lépcsőházból is megközelíthetőek !Ezekben több, külön bejáratú iroda, teakonyha, mosdók, zuhanyzók és tárolók biztosítják a kényelmes és hatékony munkavégzést, sőt lakás funkciót is el tudnak látni ha arra lenne szükség.Az irodahelyiségek mérete: a kb. 16 m²-től egészen a 106 m² egybefüggő alapterület között mozog, így kisebb és nagyobb csapatok számára is jól használhatók.Itt is található további alkatrészraktár/tárolóhelyiség/irattár stb. és a kiszolgáló helyiségek, így a műszaki és adminisztratív területek jól elkülöníthetők.Bemutatóterem:A főépület földszintjén egy 120 m²-es, nagy üvegfelületekkel rendelkező bemutatóterem található, amely a telephely \"szíve-lelke\". Korábban járművek kiállítására szolgált.A reprezentatív tér közvetlen utcai láthatósággal rendelkezik, így továbbra is kiválóan használható értékesítési, ügyfélfogadási vagy bemutató célokra.Külső terület és parkolás:A telek rendezett, jól áttekinthető külső területtel rendelkezik. Legalább 22 db. parkolóhely biztosított a személyautók és kisebb teherjárművek fogadására, a telek kialakítása pedig lehetővé teszi a kamionos közlekedést és rakodást is.A burkolt felületek nagy terhelést bírnak, a zöldfelületek és növényfuttató elemek pedig esztétikus környezetet teremtenek.A telephely előtti részen az utcán szintén rengeteg autó tud leparkolni.Műszaki háttér:A telephely gépészeti rendszerei ipari használatra lettek méretezve.Az ingatlan víz- és fűtésrendszere főmérőkkel és almérőkkel is rendelkezik, így az egyes épületrészek rezsifogyasztása külön-külön mérhető és elszámolható. A fűtési rendszer két kazánnal működik, amelyek közül az egyik tartalék kazánként biztosítja az üzembiztonságot. A főépület szervizcsarnokában ezen felül külön gázzal működő hőlégbefúvó is felszerelésre került, amely gyors és hatékony felfűtést tesz lehetővé nagy belmagasság mellett is.Összegzés:A telephely korábbi autószerelő és járműértékesítő profilja miatt kiemelkedően jól felszerelt, de kialakítása és méretezése lehetővé teszi, hogy az új tulajdonos szinte bármilyen ipari, kereskedelmi vagy logisztikai tevékenységet megvalósítson. A többfunkciós épületek, a nagy kapacitású csarnokok, a jól szervezett irodai háttér és a rendezett külső terület együttese egy sokoldalúan használható, magas színvonalú ipari ingatlant eredményez.Az ingatlan vételára: 299 MFt + Áfa.!!! Fontos kiemelni ugyanakkor, hogy a vevő igényei alapján a telephely a tulajdonos céggel együtt is megvásárolható !!!Az ingatlan részletes ismertetése és bemutatása előre egyeztetett időpontban lehetséges, melyet nagyon rugalmasan kezelünk, akár HÉTVÉGÉN is.További kérdéseivel kapcsolatban várom a jelentkezését.Amennyiben Önnek a vásárláshoz szüksége lenne hitelre, babaváró kölcsönre, lakástakarékra, stb., kezdeményezheti a kapcsolatfelvételt bankfüggetlen hitelügyintézőinkkel, teljesen DÍJMENTESEN.Közel 25 év szakmai tapasztalattal rendelkezem, eladó vagy kiadó ingatlana értékesítése vagy bérbeadása esetén, készséggel állok az Ön rendelkezésére is, keressen bizalommal.
További adatok
Telekterület: -
Kert mérete: -
Erkély mérete: -
Felszereltség: -
Parkolás: -
Kilátás: -
Egyéb extrák:  
-
Hirdető adatai
Hirdető neve: GDN Ingatlanhálózat
Hirdető telefonszáma: +36-30-560-5587