Budapest, II.kerület
Buday László utca 

Ingatlan adatai
Irányár: 142 000 000 Ft
Típus: lakás (tégla)
Kategória: eladó
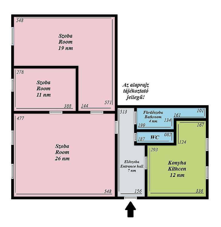
Alapterület: 81 m2
Fűtés: gáz (cirko)
Állapota: felújítást igényel
Szobák száma: 3
Építés éve: 1930
Szintek száma: -
Részletes leírás
Eladó szerkezetkész, különleges adottságú lakás kiváló lokációban – 81 nmEladásra kínálunk egy 81 nm-es, szerkezetkész állapotú lakást, amely tökéletes választás azoknak, akik saját elképzeléseik szerint szeretnék kialakítani otthonukat. A lakás teljes szabadságot biztosít a belső terek megtervezésében, minden szükséges vezeték már ki lett építve, így a felújítás gyorsan és hatékonyan befejezhető.Az ingatlan különlegessége a 3,80 méteres belmagasság, amely nemcsak elegáns, loft hangulatot teremt, hanem galériák kialakítására is ideális. A lakásban két külön nyíló hálószoba található, mindkettő saját galériával, ami extra tároló- vagy hálóhelyet biztosít.A tágas nappali rendkívül világos, nagy ablakain keresztül egész nap természetes fény áramlik a lakásba. A nappaliban már kialakításra került a kandalló helye, amely különleges hangulatot adhat az elkészült otthonnak.Az elrendezés modern és praktikus:külön fürdőszoba és külön WC,önálló, ablakos konyha, amelyhez galériás tárolóhely is tartozik.A lakás déli tájolású, így egész nap napfényes, világos és kellemes klímájú tereket kínál. A nagy belmagasság és a tágas helyiségek miatt a lakás rendkívül szellős és könnyen alakítható, akár egyedi design megoldásokkal is.A lokáció kiváló: csendes mellékutcában található, mégis pár perc sétára elérhető minden fontos szolgáltatás. A közelben találhatóak üzletek, éttermek, szolgáltatások, valamint a Mammut bevásárlóközpont és több tömegközlekedési csomópont, így a város bármely pontja könnyen megközelíthető.Ez az ingatlan remek lehetőség saját otthon kialakítására vagy befektetésnek is, hiszen ritka az ilyen adottságú, nagy belmagasságú, jól alakítható lakás ezen a környéken.További információért vagy megtekintésért keressen bizalommal!!!!!AZ ÁR IRÁNYÁR!!!!
További adatok
Telekterület: -
Kert mérete: -
Erkély mérete: -
Felszereltség: -
Parkolás: -
Kilátás: utcai
Egyéb extrák:  
-
Hirdető adatai
Hirdető neve: MPD Hungary Kft.
Hirdető telefonszáma: +36703650827