Szabolcs-Szatmár-Bereg megye, Mándok
 

Ingatlan adatai
Irányár: 27 900 000 Ft
Típus: ház
Kategória: eladó
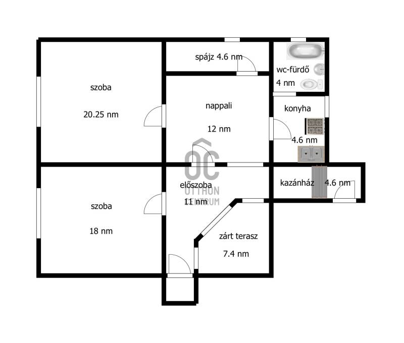
Alapterület: 75 m2
Fűtés: gáz (cirko)
Állapota: -
Szobák száma: 3
Építés éve: 1954
Szintek száma: -
Részletes leírás
Megvételre kínálok Mándokon, főúthoz, postához közeli, polgárias környéken, egy, az 50 -es években vegyes falazatból épült (vályog és tégla), 2016 -ban lemezzel átfedett, jó állapotú családi házat, 2280 nm-es, 20 méter széles telken. A folyamatosan karbantartott ingatlan belső elrendezése átgondolt, a két utcafronti szobát laminált padlóval, a nappalit padlószőnyeggel, a többi helyiséget (a konyhát, az előszobát, a wc-fürdőszobát, valamint a hangulatos, fedett teraszt) járólappal burkolták. A külső nyílászárók többségét 2018 -ban hőszigetelt műanyagra cserélték, az ablakokat redőnnyel szerelték fel, a víz és elektromos vezetékek részleges cseréje már korábban, 1982 -ben megtörtént. A melegről központi fűtés gondoskodik, ami gáz, illetve vegyes kazánnal is üzemeltethető. Az udvaron vezetékes kút, a kertben tároló, sertésólak, továbbá termő gyümölcsfák találhatók. Mándok eladó családi ház
További adatok
Telekterület: 2 280 m2
Kert mérete: 2 280 m2
Erkély mérete: 7 m2
Felszereltség: -
Parkolás: -
Kilátás: -
Egyéb extrák:  
-
Hirdető adatai
Hirdető neve: Otthon Centrum
Hirdető telefonszáma: +36 70 388 5416