Pest megye, Érd
 

Ingatlan adatai
Irányár: 120 000 000 Ft
Típus: ház
Kategória: eladó
Alapterület: 140 m2
Fűtés: -
Állapota: új
Szobák száma: 4
Építés éve: 2026
Szintek száma: -
Részletes leírás
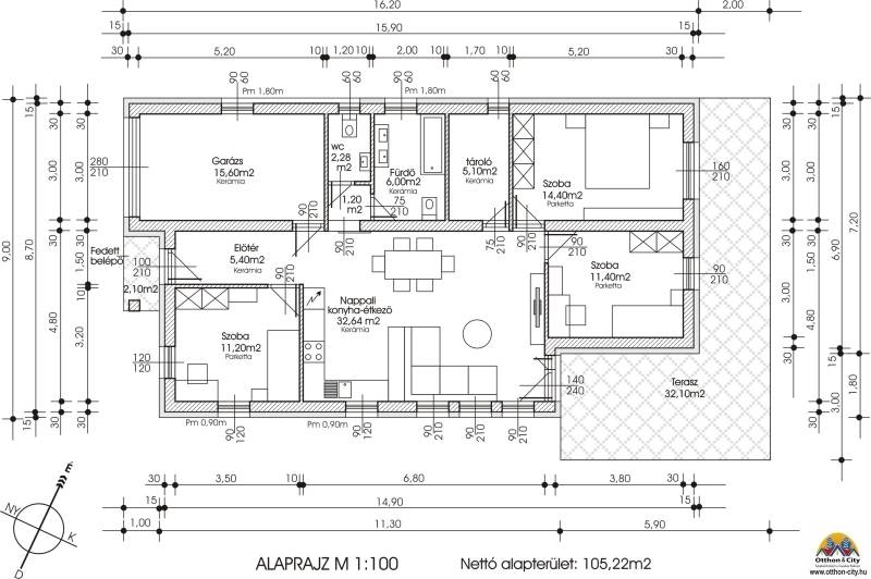
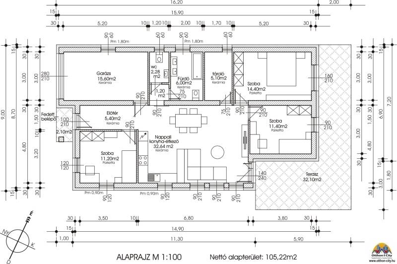
LeírásNAGYON KEDVEZŐ ÁRON, ÚJÉPÍTÉSŰ CSALÁDI HÁZ ELADÓ ÉRDEN A FUNDOKLIA VÖLGYBEN!!Érd csendes részén mellékutcában, eladó egy 120 nm-es, garázsos , 4 szobás új építésű családi ház nagy terasszal, 1100 nm-es telekkel.Helyiségek:szobák: 14,5 nm,14,5, 11,5 nm.nappali + konyha: 32 nm.garázs:15,6 nm.wc: 2,5 nm.f.szoba:6 nm.tároló:5 nm.terasz: 32 nm.- műszaki tartalom:főfal: 30 cm tégla, 15 cm dryvit szigetelés, műanyag nyílászárók, fűtés: padlófűtés + hőszivattyú,fafödém, betoncserép, közművek: víz, villany, 8 m3-es emésztő.- infrastruktúra: a környéken iskola, óvoda, Interspar, benzinkút,orvosi rendelő, gyógyszertár, stb.-közlekedés:az M7 autóval 4 perc.Ingyenes hitel tanácsadással, kedvezményes jogi képviselettel lehetünk segítségére.Energetikai szakvéleményre van szüksége? Jó helyre fordult.Megtetszett az ingatlan, de sajátját még nem adta el? Levesszük a gond nagy részét a válláról, segítséget nyújtunk az eladásban is. Bízza ránk az értékesítését!Kérésre ingyenes értékbecslést is végzünk az ingatlanán,hívjon minket bizalommal.
További adatok
Telekterület: 1 000 m2
Kert mérete: 1 000 m2
Erkély mérete: 20 m2
Felszereltség: -
Parkolás: -
Kilátás: -
Egyéb extrák:  
-
Hirdető adatai
Hirdető neve: Otthon & City ingatlan iroda
Hirdető telefonszáma: +36702400618