Pest megye, Pilis
 

Ingatlan adatai
Irányár: 16 000 000 Ft
Típus: ház
Kategória: eladó
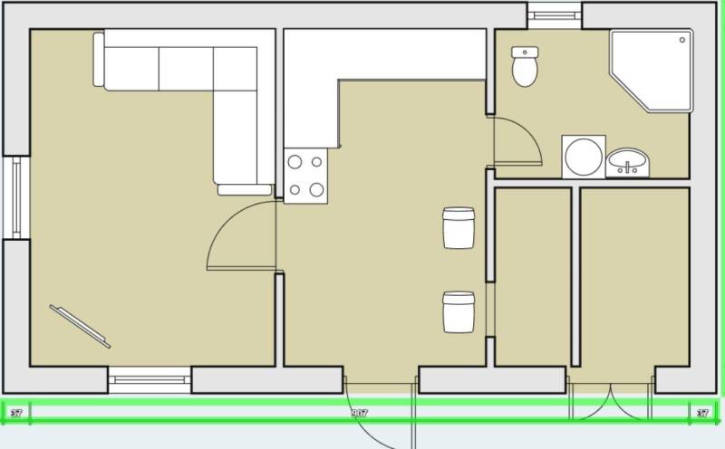
Alapterület: 35 m2
Fűtés: egyéb
Állapota: -
Szobák száma: 1+1
Építés éve: -
Szintek száma: -
Részletes leírás
Pilis város zártkerti részében vált eladóvá ez a könnyen gondozható 342nm-es telken megépült 35nm-es gazdasági épület. Benne 1 szoba , konyha ebédlő résszel , fürdőszoba , félszoba helység kiosztással. A ház alatt pince helyezkedik el. Fűtéséről gázkonvektor gondoskodik , meleg víz ellátása boylerről. Fúrt kútról kapja a víz ellátását , emésztőbe ürül. Vegyes falazatú , fafödémes , cserép héjazatú. Szigeteléssel ellátott. Művelés alól nincs kivéve , kifüggesztéssel lehet értékesíteni. Gazdasági épületként feltüntetve. Osztatlan közös tulajdonban , per teher mentesen várja leendőbeli gazdáját ez a kis takaros házacska. Keskeny utcafronti rész 9méter széles. Hosszan benyuló telekkel. Autóval a parkolás az utcán lehetséges.
További adatok
Telekterület: 342 m2
Kert mérete: 342 m2
Erkély mérete: -
Felszereltség: -
Parkolás: -
Kilátás: -
Egyéb extrák:  
-
Hirdető adatai
Hirdető neve: Dabas Régió
Hirdető telefonszáma: 06204004025