Budapest, III.kerület
 

Ingatlan adatai
Irányár: 450 000 000 Ft
Típus: lakás (tégla)
Kategória: eladó
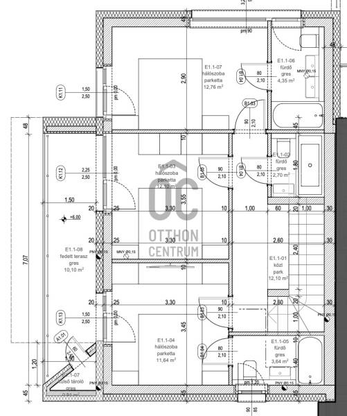
Alapterület: 126 m2
Fűtés: -
Állapota: -
Szobák száma: 4
Építés éve: 2024
Szintek száma: -
Részletes leírás
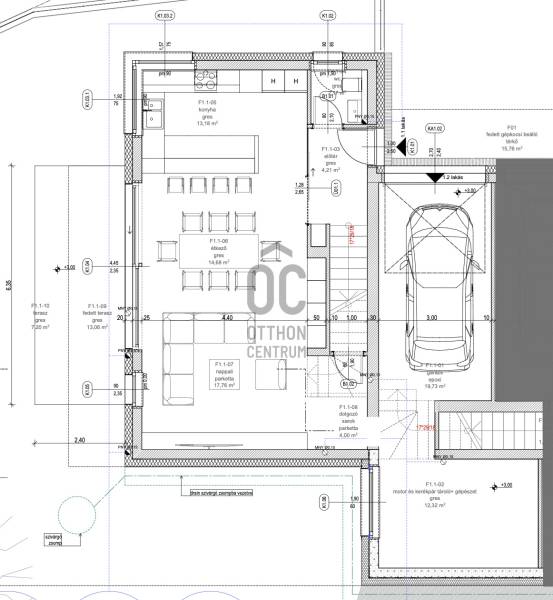
A III. kerület egyik legkedveltebb, legnaposabb részén, Testvérhegy erdősávos utcájában kínálunk megvételre egy újszerű, prémium kategóriás ingatlant, amely minden részletében a luxus és a kompromisszummentes minőség megtestesítője.Páratlan elhelyezkedésAz ingatlan Testvérhegy legnaposabb utcájában helyezkedik el, csodálatos zöld környezetben, mégis kiváló közlekedéssel:Autóval az Árpád híd mindössze 10 percA British International School Budapest és az Alternatív Közgazdasági Gimnázium 8 percen belül elérhetőMinden fontos szolgáltatás néhány percen belül megtalálhatóAz otthon, amely túlmutat az átlagonA kétszintes ingatlan ideális elosztású:3 hálószobaTágas, amerikai konyhás nappali-étkező, amely tökéletes helyszíne baráti és családi összejöveteleknek2 fürdőszoba1 külön wc-kézmosóHáztartási helyiségGardróbA gondosan megtervezett belső terekben a legújabb prémium burkolatok, egyedi megoldások és egy többkörös designfolyamat során összeállított, mestermunka minőségű bútorzat kapott helyet. A kortárs belsőépítészet egyik kiemelkedő példája – nemcsak látványában, hanem funkcionalitásában is kifogástalan.Már az előtérből a nappaliba lépve érezhető: ez nem egy átlagos ingatlan.Panoráma és exkluzív kültéri élményA kertkapcsolatos, tágas teraszokról fantasztikus városi panoráma tárul elénk.A teraszokon akklimatikus pergolák és elhúzható üvegfalak biztosítják az egész éves kényelmet, a 9 személyes Wellis jacuzzi pedig a luxus életérzés elengedhetetlen része.Modern műszaki tartalomOkosotthon rendszerHőszivattyús fűtési rendszerMennyezeti hűtés-fűtésGarázs + egy felszíni beállóPÉLDÁTLAN MINŐSÉG – KOMPROMISSZUMOK NÉLKÜLAz egyedi tervezésű bútorokat és a gépesítést a vételár tartalmazzaEz az ingatlan azoknak szól, akik már nem szeretnének többet költözni, és a tökéletes, kompromisszummentes otthont keresik hosszú távra.Minden részletében a luxus élményét nyújtja – a prémium kategória esszenciája.Jöjjön el, nézze meg személyesen – garantáltan nem fog csalódni!
További adatok
Telekterület: -
Kert mérete: -
Erkély mérete: 30 m2
Felszereltség: -
Parkolás: -
Kilátás: kertre néző
Egyéb extrák:  
-
Hirdető adatai
Hirdető neve: Otthon Centrum
Hirdető telefonszáma: +36 70 388 5711