Hajdú-Bihar megye, Debrecen
 

Ingatlan adatai
Irányár: 99 990 000 Ft
Típus: lakás (újépítésű)
Kategória: eladó
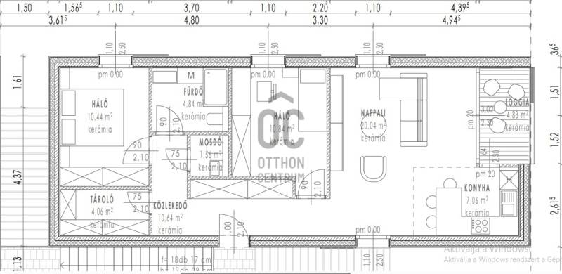
Alapterület: 69 m2
Fűtés: gáz (cirko)
Állapota: új
Szobák száma: 3
Építés éve: 2025
Szintek száma: -
Részletes leírás
DEBRECEN – NYULASExkluzív, intim lakópark mindössze 5 önálló otthonnalHárom különálló épület.Nincs közös fal.Nincs kompromisszum.Itt a nyugalom nem ígéret, hanem alapfelszereltség. A kis léptékű kialakítás, a zöld környezet és az átgondolt építészeti koncepció valódi prémium életérzést teremt.A+ energetikai besorolás, korszerű műszaki tartalom, időtálló minőség.Minden lakáshoz saját loggia tartozik – egy privát kültéri tér, ahol a reggeli kávé és az esti kikapcsolódás is külön élmény.Az ingatlan főbb jellemzői:- 69 nm - Nappali- amerikai konyha, 2 hálószoba, fürdőszoba, tároló, 5 nm loggia- 1. emelet- 36 cm Isospan falazati rendszer + 16 cm grafitos szigetelés- külső nyílászárók 3 rtg üvegezés, 6 légkamrás műanyag profilban- gázcirkó kazán, padlófűtés hőleadással- minden szobában klímaberendezésAz ingatlanhoz garázs külön vásárolható- ára: 14,25 M ftÁtadás: 2026. III. negyedévModern technológia, energiatakarékos megoldások és természetközeli életérzés – mindez egy helyen.Családi ház szabadsága.Társasház eleganciája.Prémium környezet, kevés kiválasztottnak.További felvilágosításért ill. a megtekintéssel kapcsolatban kérem keressen!Hívjon, ne maradjon le róla !
További adatok
Telekterület: -
Kert mérete: -
Erkély mérete: 4 m2
Felszereltség: -
Parkolás: -
Kilátás: kertre néző
Egyéb extrák:  
-
Hirdető adatai
Hirdető neve: Otthon Centrum
Hirdető telefonszáma: +36 70 469 3526