Pest megye, Dabas
 

Ingatlan adatai
Irányár: 92 500 000 Ft
Típus: ház
Kategória: eladó
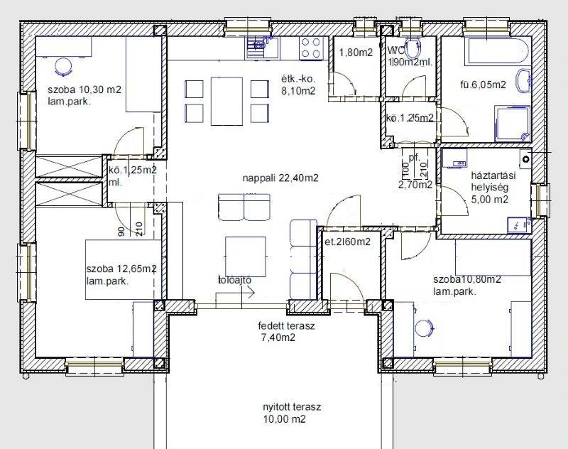
Alapterület: 87 m2
Fűtés: gáz (cirko)
Állapota: új
Szobák száma: 3
Építés éve: 2025
Szintek száma: -
Részletes leírás
Eladó egy modern, energiatakarékos családi ház Dabason, nyugodt környezetben!A 87 nm alapterületű, praktikus elrendezésű, 3 szobás, Leier téglából épült otthon várja új tulajdonosát, 728 nm-es, körbekerített, rendezett telekkel.Az ingatlan korszerű műszaki tartalommal készült:• hőszigetelt falazat• padlófűtés az egész házban• 4 klíma• modern, gazdaságos Vaillant gázkazán• igényes burkolatok és beltéri ajtók• viacolorral burkolt beálló• esztétikus, masszív utcafronti kerítés• az ablakokon redőny, a nappalin elektromos redőnyAz otthon egyik különleges előnye a saját fúrt kút, erről üzemel a ház és amely jelentősen csökkenti a vízdíjat, továbbá kiváló megoldás öntözésre, kertfenntartásra – így a telek gondozása költséghatékonyan megoldható.A zárt emésztőrendszer modern, biztonságos és ellenőrizhető megoldás, amely függetlenséget biztosít a közcsatorna-hálózattól. Az utcában a vízközmű elérhető.A falakon 10 cm szigetelés, a könnyűszerkezetes födémen 35 cm szigetelés van. A házban 3X16 A áram áll rendelkezésre.Ez az ingatlan ideális választás mindazoknak, akik egy korszerű, alacsony fenntartású otthont keresnek nyugodt környezetben.Ha fontos Önnek a gazdaságosság, a modern komfort és a saját kert szabadsága, ezt a házat érdemes megnézni!
További adatok
Telekterület: 728 m2
Kert mérete: 728 m2
Erkély mérete: 7 m2
Felszereltség: -
Parkolás: -
Kilátás: -
Egyéb extrák:  
-
Hirdető adatai
Hirdető neve: Nagy Ingatlan
Hirdető telefonszáma: 06-70-77-22-430