Budapest, XIV.kerület
 

Ingatlan adatai
Irányár: 249 990 000 Ft
Típus: ház
Kategória: eladó
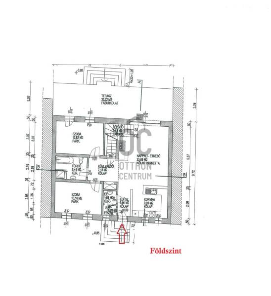
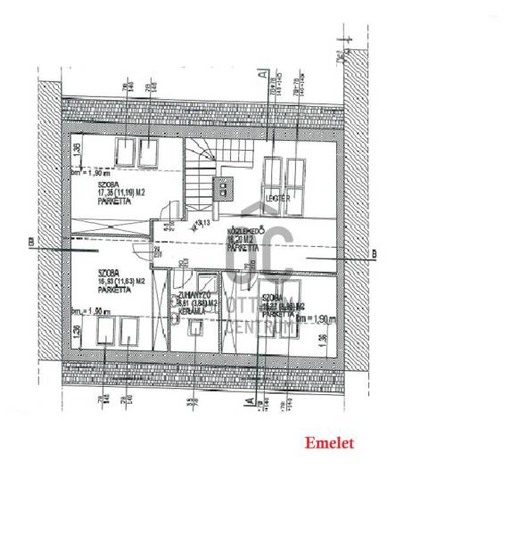
Alapterület: 170 m2
Fűtés: gáz (cirko)
Állapota: -
Szobák száma: 6
Építés éve: 2005
Szintek száma: -
Részletes leírás
Fedezd fel álmaid otthonát Budapest XIV. kerületének csendes, de mégis pezsgő részén Zuglóban!Ez a felújított, kiváló állapotú, sorház jellegű, két szintes családi ház nem csupán egy ingatlan, hanem egy életstílus, amely ideális azok részére, akik értékelik a kényelmet és a természet közelségét.Nappali+ 5 tágas hálószobával rendelkezik, így bőséges teret biztosít a család számára, vagy akár baráti összejövetelekhez is. Két fürdőszobája garantálja, hogy reggelente senkinek sem kell várakoznia és emellett még vendég mosdó is megtalálható.A házhoz tartozik egy 403 négyzetméteres telek, amely rendezett kerttel rendelkezik. A füvesített kertben kiépített öntözőrendszer, 3x5 méteres hőszivattyúval fűthető medence, fedett sütögető rész és egy kis faház tárolónak is megtalálható.A 35 nm-es terasz tökéletes helyszín családi grillezésekhez vagy csak a napozáshoz.A prémium kivitelezés és a modern dizájn megjelenik a ház minden részletében. A kandallós nappali a téli estéken biztosítja a meghitt hangulatot. Az ingatlan fűtése gázkazán (viessmann) történik, radiátoros hőleadókkal, valamint padlófűtés is ki lett építve.Hűtése klímával, így a legforróbb nyári napokon is kellemes hőmérsékletet biztosít.A riasztó és kamera rendszer és a biztonságos környék nyugalmat ad a mindennapokhoz.Két autó számára udvari beálló áll rendelkezésre elektromos kapuval, biciklitárolóval.Fenntartása nagyon kedvező, köszönhető ez az 50 cm-es téglafalazatnak és a modern nyílászáróknak is.Az ingatlan tehermentes, így gyorsan birtokba vehető kifizetést követően.A környék kiemelkedő közlekedési lehetőségekkel rendelkezik: a kitűnő közlekedésnek köszönhetően gyorsan elérheted a belvárost. A csendes utcák és a barátságos szomszédság ideális környezetet biztosítanak az ideköltözők számára, akik szeretnék élvezni a városi élet előnyeit, miközben a természet lágy ölén pihenhetnek. Ne habozz, ha egy exkluzív, modern és családbarát otthont keresel, ami minden igényt kielégít!Várom megkeresésedet hétköznap és hétvégén is!Ez az ingatlan a \"Felező csomag\" megbízási portfólióhoz tartozik. Részletek az Otthon Centrum weboldalán.
További adatok
Telekterület: 403 m2
Kert mérete: 403 m2
Erkély mérete: 35 m2
Felszereltség: -
Parkolás: -
Kilátás: -
Egyéb extrák:  
-
Hirdető adatai
Hirdető neve: Otthon Centrum
Hirdető telefonszáma: +36 70 469 3306