Hajdú-Bihar megye, Bocskaikert
 

Ingatlan adatai
Irányár: 78 397 000 Ft
Típus: ház
Kategória: eladó
Alapterület: 86 m2
Fűtés: gáz (cirko)
Állapota: új
Szobák száma: 4
Építés éve: 2026
Szintek száma: -
Részletes leírás
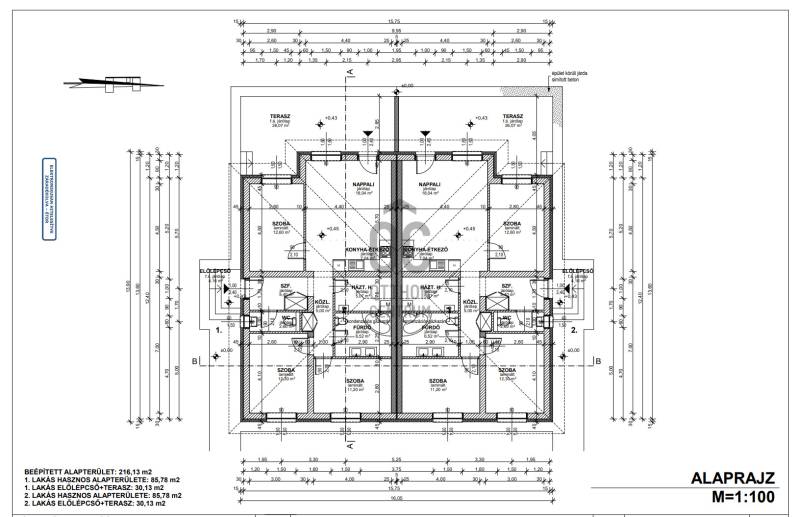
Bocskaikert csendes, nyugodt részén, 524 m²-es telken modern kialakítású, új építésű ikerház épül, amely ideális választás mindazok számára, akik korszerű és energiatakarékos otthont keresnek.Az ingatlan egy 85,78 m²-es, új építésű, 3 szobás + amerikai konyhás-nappalis ikerház, amely átgondolt térkialakítással és kimagasló műszaki tartalommal valósul meg.Szerkezet és szigetelés:- 30 cm-es Porotherm/Leier tégla falazat- 15 cm homlokzati EPS hőszigetelés- 10 cm XPS lábazati szigetelés- 30 cm födémszigetelés- 3 rétegű üvegezésű, 6 légkamrás műanyag nyílászárók- A korszerű gépészet és a modern technológia hosszú távon alacsony fenntartási költséget biztosít.Fűtés és gépészet:- korszerű padlófűtés, vagy gáz hiányában modern hőszivattyús rendszer- a vételár része 2 db inverteres klíma- energiahatékony, alacsony rezsijű működés- közművek telken belüli csatlakoztatása (amennyiben adott)- városi víz hiányában házi vízmű- csatorna hiányában 3 m³-es zárt szennyvíztartály (igény szerint nagyobb kapacitással, felár ellenében)Az építkezés kezdete: 2026.Ez az ingatlan kiváló választás mindazoknak, akik megbízható kivitelezésű, jól szigetelt, energiatakarékos új otthont szeretnének nyugodt környezetben, Bocskaikert kedvelt részén.Érdeklődjön most, és foglalja le időben új otthonát!
További adatok
Telekterület: 524 m2
Kert mérete: 524 m2
Erkély mérete: 30 m2
Felszereltség: -
Parkolás: -
Kilátás: -
Egyéb extrák:  
-
Hirdető adatai
Hirdető neve: Otthon Centrum
Hirdető telefonszáma: +36 70 388 6186