Győr-Moson-Sopron megye, Győr
 

Ingatlan adatai
Irányár: 69 900 000 Ft
Típus: lakás (tégla)
Kategória: eladó
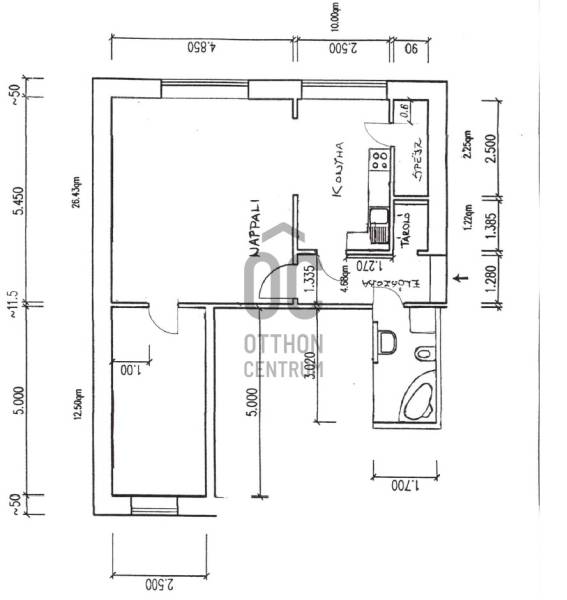
Alapterület: 60 m2
Fűtés: gáz (cirko)
Állapota: -
Szobák száma: 4
Építés éve: 1950
Szintek száma: -
Részletes leírás
Győrben Sziget -Belváros határán , egyik legkedveltebb részén kínálunk eladásra egy jó állapotú, földszinti, dupla galériás lakást, amely egyedi kialakításának köszönhetően rendkívül praktikus és élhető.A galériák beépítésével az ingatlan bruttó 76 m² lakóteret biztosít tulajdonosának. Az elrendezés átgondolt és funkcionális:•tágas konyha–étkező•fürdőszoba sarokkáddal, zuhanyzóval és WC-vel•háztartási helyiség•kamra•külön kialakított, rejtett belső padlástér, amely kiváló pakolási lehetőséget nyújtAz ingatlanhoz önálló pince tartozik, valamint a nagy méretű, közös belső udvar nyugodt kikapcsolódást biztosít a lakók számára.A fűtést gázcirkó biztosítja. A 60 cm vastag falaknak köszönhetően a lakás télen–nyáron kellemes hőmérsékletű. A felújítás során a víz- és villamos hálózat teljes cseréje megtörtént, a belső terek pedig praktikusan, észszerűen kerültek átalakításra.A járólapos helyiségekben padlófűtés, míg a parkettás szobákban radiátorok gondoskodnak a komfortos hőérzetről.Központi elhelyezkedése kiváló: egyetem, fürdő, sétány, vízpart és minden fontos szolgáltatás néhány percen belül elérhető.Egyedi adottságú belvárosi otthon vagy kiváló befektetés – ritka lehetőség Győr szívében.További kérdések vagy megtekintés esetén keressen bizalommal.Hitelre van szüksége?Az Otthon Centrum, az ország egyik legnagyobb és legmegbízhatóbb hitelközvetítője, teljes körű és díjmentes hitelügyintézéssel, valamint biztosításkötéssel segíti ügyfeleit.Kérje kollégáinktól személyre szabott ajánlatát, és találja meg a legjobb megoldást gyorsan és egyszerűen!
További adatok
Telekterület: -
Kert mérete: -
Erkély mérete: -
Felszereltség: -
Parkolás: -
Kilátás: utcai
Egyéb extrák:  
-
Hirdető adatai
Hirdető neve: Otthon Centrum
Hirdető telefonszáma: +36 70 461 9096