Budapest, XIV.kerület
 

Ingatlan adatai
Irányár: 112 600 000 Ft
Típus: lakás (tégla)
Kategória: eladó
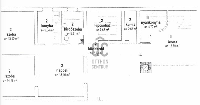
Alapterület: 69 m2
Fűtés: gáz (cirko)
Állapota: -
Szobák száma: 3
Építés éve: 1999
Szintek száma: -
Részletes leírás
CÍM: JÓ ÁLLAPOTÚ, HANGULATOS OTTHON ZUGLÓBAN – INTIM TERASZ ÉS KANDALLÓ A NYUGALOM SZIGETÉN!Keresi a békét és a harmóniát egy kis lakásszámú házban?Eladásra kínáljuk Kiszugló egyik legcsendesebb utcájában egy mindössze 3 lakásos, folyamatosan karbantartott társasház első emeleti lakását. Az ingatlan tágas terekkel és barátságos hangulattal várja új tulajdonosát.MIÉRT ÉRDEMES EZT A LAKÁST VÁLASZTANIA?Méretek: Nettó 69 m² (Bruttó 97,41 m²), 275 cm-es belmagasság.Intim kültéri élettér: A lakás egyik legnagyobb vonzereje a hátsó terasz, amely a gondozott kertre és a medencére néz, zavartalan pihenést biztosítva.Különleges részletek: A nappaliban található látványkandalló meghitt estéket garantál. A lakáshoz tartozik egy télikert jellegű, zárt folyosó is, ami plusz tágasságot és fényt ad.Modern technológia: 2025-ban beszerelt hűtő-fűtő inverteres klímák és riasztórendszer gondoskodik a biztonságról és a kényelemről.Alacsony rezsi: Nincs közös költség, a fenntartása rendkívül gazdaságos.KÖRNYÉK ÉS KÖZLEKEDÉS: Az ingatlan elhelyezkedése ötvözi a kertvárosi csendet a városi kényelemmel. A közeli Bosnyák tér minden bevásárlási igényt kielégít. A tömegközlekedés kiváló: a 7-es buszcsalád gyorsjárataival (7E, 8E, 108E) percek alatt a belvárosban lehet, de a 3-as villamos is a közelben áll meg. Az előkertben termő gyümölcsfák (szilva, füge, málna) és a csendes lakóközösség teszik teljessé a zuglói életérzést.Extrák: Külön tárolóhelyiség, kandalló, délnyugati fekvésű terasz, csendes lakóközösség, az előkertben gyümölcs fák, (Málna, Füge, Szőlő, Szilva) a ház és a lakóközösség is kiemelten csendesek.IRÁNYÁR: 112 600 000 Ft (1 631 884 Ft/m²)
További adatok
Telekterület: -
Kert mérete: -
Erkély mérete: 34 m2
Felszereltség: -
Parkolás: -
Kilátás: kertre néző
Egyéb extrák:  
-
Hirdető adatai
Hirdető neve: Otthon Centrum
Hirdető telefonszáma: +36 70 716 9861