Pest megye, Göd
Göd 

Ingatlan adatai
Irányár: 165 900 000 Ft
Típus: ház
Kategória: eladó
Alapterület: 166 m2
Fűtés: egyéb
Állapota: új
Szobák száma: 5
Építés éve: 2026
Szintek száma: -
Részletes leírás
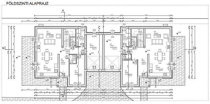
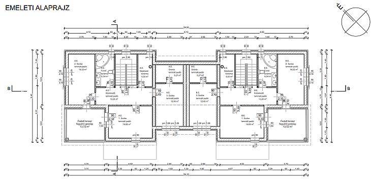
Alsógöd kertvárosában kínálunk eladásra két újépítésű, 166 m²-es családi házat, amelyhez 744 m²-es, külön elkerített kert tartozik.A két lakóegység egy telken belül helyezkedik el, a megközelítés közös használatú magánúton történik, a házak ettől függetlenül önálló bejárattal és külön garázzsal rendelkeznek.Az épület 30 cm-es téglafalazattal készül, 10 cm vastag külső dryvit hőszigeteléssel. A tető betoncserép fedést kap.Az ingatlan korszerű műszaki tartalommal épül, a fűtést hőszivattyús rendszer biztosítja, a hőleadás padlófűtéssel történik. Az egész éves komfortot tovább növeli a 2 db inverteres klímaberendezés, melyek a vételár részét képezik, így az üzemeltetés energiatakarékos és kényelmes.A külső nyílászárók műanyag szerkezetűek, hőszigetelő üvegezéssel kerülnek beépítésre, hozzájárulva az alacsony fenntartási költségekhez.A lakótér tágas, jól átgondolt elrendezésű, kifejezetten családi életre tervezve.Elosztása:Földszint: Amerikai konyhás nappali, hálószoba, fürdőszoba, WC, garázs.Emelet: 3 db Hálószoba, fürdőszoba, gépészeti helyiség és egy fedett terasz.Az újépítés előnye, hogy nem igényel felújítást, azonnal költözhető állapotban van. A 744 m²-es, leválasztott kert valóban saját használatú, alkalmas pihenésre, gyerekeknek, kerti programokra vagy akár további fejlesztésekre is.Várható átadás: 2026.December-2027.JanuárJelen esetben foglalózás után, hideg meleg burkolatok, beltéri nyílászárók, szaniterek választhatóak melyek a meghirdetett ár részét képezik a belső műszaki tartalom szerint.Megtekintés érdekében vagy felmerülő kérdés esetén keresse irodánkat.A hirdetésben szereplő adatok tájékoztató jellegűek.Az ingatlan hitelre is megvásárolható. Bankfüggetlen tanácsadóink, az ország összes pénzintézete közül gyorsan és gördülékenyen találja meg az Önnek legmegfelelőbb konstrukciót, egyedi kedvezményekkel. A hitel és az ingatlan közvetítés vevőink részére díjmentes.
További adatok
Telekterület: 744 m2
Kert mérete: 744 m2
Erkély mérete: -
Felszereltség: -
Parkolás: -
Kilátás: kertre néző
Egyéb extrák:  
-
Hirdető adatai
Hirdető neve: MPD Hungary Kft.
Hirdető telefonszáma: +36301096915