Pest megye, Cegléd
 

Ingatlan adatai
Irányár: 57 700 000 Ft
Típus: lakás (újépítésű)
Kategória: eladó
Alapterület: 56 m2
Fűtés: -
Állapota: új
Szobák száma: 2
Építés éve: 2028
Szintek száma: -
Részletes leírás
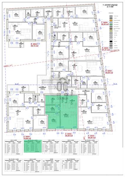
Projekt bemutatásaBefektetők és Otthonkeresők figyelem! Új Építésű Lakások Cegléden!Fedezze fel Cegléd legújabb ékkövét! 2028. második félévében átadásra kerülő, 15 lakásos társasház várja új lakóit és befektetőit. A projektet magas műszaki tartalom és rendkívüli megbízhatóság jellemzi, garantálva a minőséget és a hosszú távú értéknövekedést.1. és 2. emeleten 7-7 lakás (46.89 - 67.31 nm) Vételár: 48.4 M - 69.6 MMiért válassza ezt az új építésű társasházat?- Számos referencia a városban- Prémium Kivitelezés: Modern, igényes kialakítás és minőségi anyagok biztosítják az eleganciát és tartósságot.- Kiváló lokáció: Cegléd szívében, közel a közlekedési csomópontokhoz, iskolákhoz, bevásárlóközpontokhoz és szabadidős lehetőségekhez.- Energiahatékonyság: Korszerű fűtési rendszerek és szigetelés csökkentik a fenntartási költségeket, így hosszú távon is kedvező megoldást nyújtanak.- Biztonság és Kényelem: Zárt udvar, biztonsági rendszerek és parkolóhelyek biztosítják a nyugalmat és kényelmet.- Rugalmasság és Variálhatóság: A lakások különböző méretűek és elrendezésűek, így mindenki megtalálhatja a számára tökéletes otthont vagy befektetést.- Garázs minden lakáshoz, melynek vételára 10 MFt+ ÁfaBefektetők számára:Ez a projekt kiváló lehetőséget nyújt a jövőbeni értéknövekedésre és stabil bevételi forrást biztosít bérbeadás révén. Az ingatlanpiac folyamatosan növekvő trendjei alapján ez az ingatlan hosszú távon is biztosítja a befektetés megtérülését.Magánszemélyeknek:Találja meg álmai otthonát egy nyugodt, mégis központi helyen! Modern lakásaink ideálisak családoknak, pároknak és egyedülállóknak egyaránt. Kezdje új élete fejezetét egy friss, új építésű otthonban, amely minden igényét kielégíti!Ne hagyja ki ezt a kivételes lehetőséget! További információkért és személyes konzultációért keressen minket bizalommal!Fontos megjegyzések:· A jelen adatok tájékoztató jellegűek. Irodánk a változásokért vagy eltérésekért semmilyen kötelezettséget vagy felelősséget nem vállal. Az alaprajzokon ábrázolt berendezési tárgyak és bútorok, valamint a burkolatok megjelenése nem képezi a szerződés tárgyát. A pontos felszereltségről a műszaki leírásban olvashat bővebben. A projekt várható befejezése 2028.09.30.· Az aktuális lakáskínálatról és árakról érdeklődjön telefonon!Alapértelmezett értékek
További adatok
Telekterület: -
Kert mérete: -
Erkély mérete: -
Felszereltség: -
Parkolás: -
Kilátás: utcai
Egyéb extrák:  
-
Hirdető adatai
Hirdető neve: Otthon Centrum
Hirdető telefonszáma: +36 70 388 5251