Budapest, XX.kerület
 

Ingatlan adatai
Irányár: 369 000 000 Ft
Típus: iroda
Kategória: eladó
Alapterület: 1 230 m2
Fűtés: -
Állapota: -
Szobák száma: -
Építés éve: 1975
Szintek száma: -
Részletes leírás
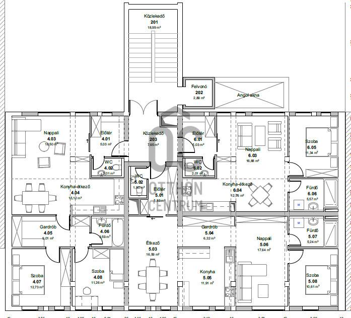
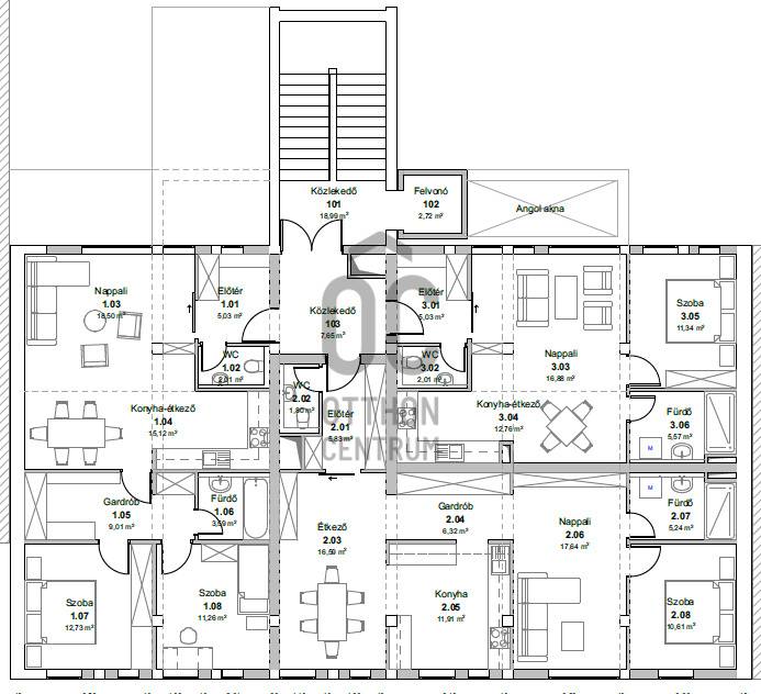
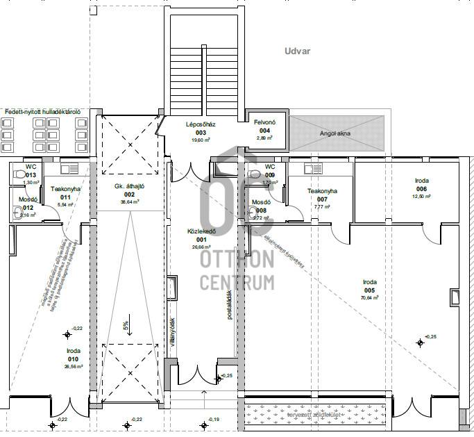
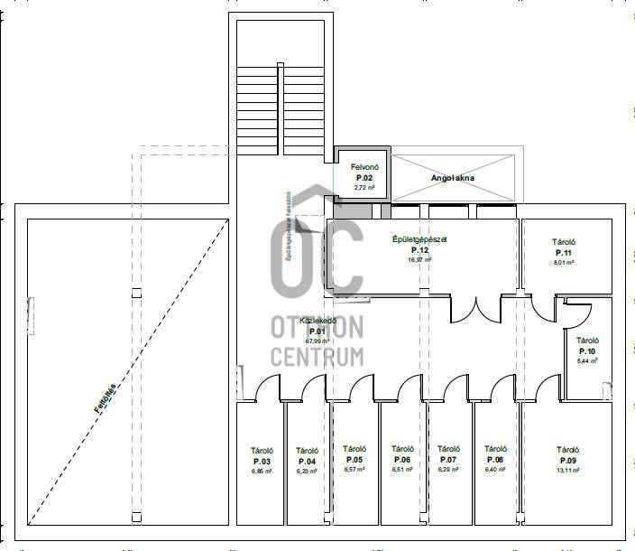
XX. kerület központjában, forgalmas utcáról nyíló, Önálló Épület Eladó.Telek mérete: 1179nmÉpület: pince szint, földszint + 2 emelet + tetőtér Pince hasznos mérete: 152nmFöldszint hasznos mérete: 218nmI. és II. emelet hasznos mérete: 235nmTetőtér hasznos mérete: 187nmLépcsőház mérete ezekben nincs benneHátsó melléképület mérete: 198nmHasznosítható: 10 lakásos Társasház kocsi beállókkal, Intézmény épület, Szálloda, Iroda, Oktatási Intézmény, Iskola, ÓvodaHasznosítási javaslat: Társasház, garázzsal, tárolókkal - Építési osztály 9-11 lakásra ad engedélytMűszaki jellemzők: száraz masszív pince, megerősített alapozás, tégla falak: épület váza rendben van, tégláig kell csak visszabontaniIpari árammal is el van látvaTulajdoni lap szerinti besorolás: Kivett Tanműhely, UdvarCég a tulajdonos, az ár nettó ár, fordított áfásVillany, víz, gáz, csatorna kiépítveÉpítési övezet: Vt-H/Ln3Üres, már nem működik benne semmi, felújítandó az állapotLokáció tökéletes, közelben Iskola, Óvoda, Bevásárlási lehetőségek, tömegközlekedés szempontjából is ideális, számtalan busz és villamos megálló van a közelben, megközelíthető bármelyik kerület
További adatok
Telekterület: -
Kert mérete: -
Erkély mérete: -
Felszereltség: -
Parkolás: -
Kilátás: -
Egyéb extrák:  
-
Hirdető adatai
Hirdető neve: Otthon Centrum
Hirdető telefonszáma: +36 70 465 7036