Budapest, II.kerület
 

Ingatlan adatai
Irányár: 590 000 000 Ft
Típus: ház
Kategória: eladó
Alapterület: 395 m2
Fűtés: -
Állapota: -
Szobák száma: 9
Építés éve: 1916
Szintek száma: -
Részletes leírás
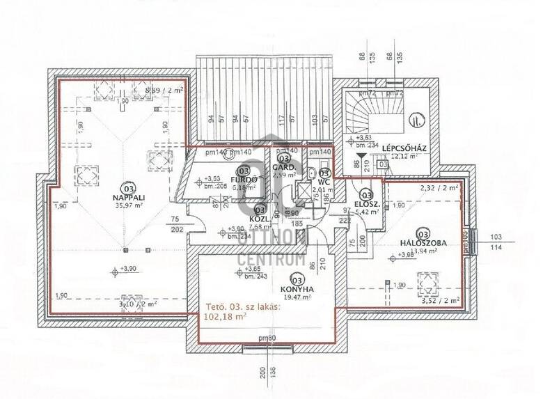
Beleszeretős, egyedi hangulatú villaépület ELADÓ, kiváló lokációban.Főbb jellemzők- jelenlegi elosztás: 3 különálló lakás 3 szinten- a 3 lakás egy lépcsőházból, és kívülről egyaránt megközelíthető- társasházként működik- a szuterén szint is kifejezetten világos, a belmagasság itt 280cm- a ház karbantartott (a tetőt 2013-ban újították fel), jó állapotú- sík telek- 1 autó számára van garázs, a kertrész mellett további 4 autó számára kényelmesen biztosított a parkolási lehetőség- tömegközlekedés: Budagyöngye (22, 22A, 222, 129 busz, 56, 56A, 59B, 61 villamos) 6 perc gyalog, 5, 91, 291 buszok 1 percreAlkalmas többgenerációs családi háznak, elhelyezkedése és reprezentatív megjelenése miatt egészségügyi intézménynek, cégközpontnak is kiváló lehetőség.Az energetikai tanúsítvány készítése folyamatban van. Amint rendelkezésre áll, úgy azzal a hirdetést frissítjük.
További adatok
Telekterület: 1 087 m2
Kert mérete: 1 087 m2
Erkély mérete: -
Felszereltség: -
Parkolás: -
Kilátás: -
Egyéb extrák:  
-
Hirdető adatai
Hirdető neve: Otthon Centrum
Hirdető telefonszáma: +36 70 461 9036