Pest megye, Zsámbék
 

Ingatlan adatai
Irányár: 155 000 000 Ft
Típus: ház
Kategória: eladó
Alapterület: 183 m2
Fűtés: egyéb
Állapota: -
Szobák száma: 4
Építés éve: 1995
Szintek száma: -
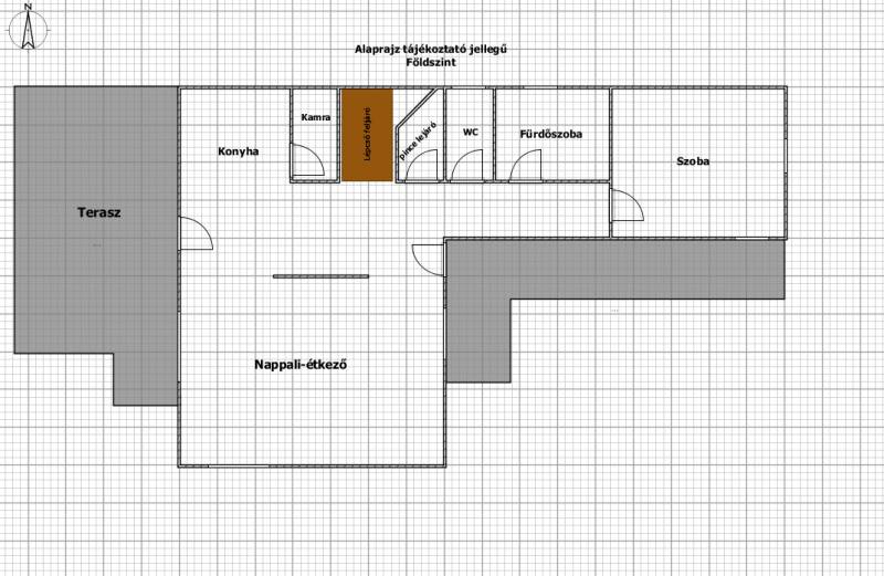
Részletes leírás
Ha fontos Önnek a békés környezet, a kiváló műszaki állapot és az azonnal költözhető otthon, akkor ezt az ingatlant érdemes megnéznie!A 1995-ben épült, 698 m²-es telken elhelyezkedő, tégla falazatú, szigetelt családi ház cserép tetőfedéssel készült, állapota újszerű. Az elmúlt években több korszerűsítés is történt, így valóban csak költözni kell.Műszaki tartalom:• 2021-ben beszerelt Bosch kondenzációs kazán• Radiátoros hőleadás• 3 db hűtő-fűtő klíma• Modern, 3 rétegű nyílászárók• 3×25 Amper + H tarifa• Kiépített wifis kamerarendszer• Riasztó• Elektromos kapu és Hörmann garázskapuPraktikus, jól átgondolt elosztásFöldszint:• Előtér• Tágas nappali-étkező• Konyha kamrával• Fürdőszoba• Külön mellékhelyiség• 1 hálószobaA nappaliból közvetlen kijárat nyílik a 40 m²-es teraszra, amelyből 25 m² fedett. A pergola gondozásmentes anyagból készült, akárcsak az utcafronti kerítés – esztétikus és időtálló megoldás.Tetőtér:• 2 kényelmes méretű szoba• Gardrób helyiség• Fürdőszoba WC-velSzuterén szint:• Gépészeti helyiség• Tároló• Műhelynek vagy hobbihelyiségnek ideális tér• GarázsA ház ideális választás családok számára, akik nyugodt, biztonságos környezetben szeretnének élni, mégis elérhető távolságban a fővárostól. Zsámbék kiváló infrastruktúrával, óvodával, iskolával, bevásárlási lehetőségekkel rendelkezik.Ez az otthon egy valódi „kulcsrakész” lehetőség – jogilag rendezett, szerethető környezetben.Amennyiben egy igényes, jól karbantartott, azonnal költözhető családi házat keres Zsámbékon, várom megtisztelő megkeresését!
További adatok
Telekterület: 698 m2
Kert mérete: 698 m2
Erkély mérete: 40 m2
Felszereltség: -
Parkolás: -
Kilátás: udvari
Egyéb extrák:  
-
Hirdető adatai
Hirdető neve: Royal Real Estates Powered by RH
Hirdető telefonszáma: +36 70 412 5713