Budapest, XVII.kerület
 

Ingatlan adatai
Irányár: 170 000 000 Ft
Típus: ház
Kategória: eladó
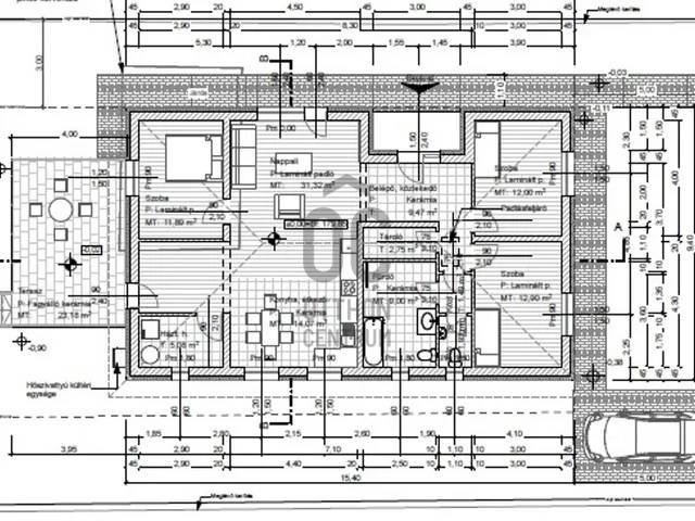
Alapterület: 112 m2
Fűtés: -
Állapota: új
Szobák száma: 4
Építés éve: 2026
Szintek száma: -
Részletes leírás
Rákoskerten, csendes, rendezett mellékutcában, kiváló tömegközlekedési elérhetőséggel várja első tulajdonosát ez az amerikai konyha-étkező-nappali+ 3 hálószobás családi ház. Az építkezés folyamatban van, így a belső burkolatok, szaniterek, külső viacolor burkolás választhatók. 18 éve dolgozom együtt a kivitelezővel, sok-sok elégedett ügyfelem ma is az általa épült házban lakik. Tervezett kulcsrakész átadás 2026 június. Ne maradjon le róla!
További adatok
Telekterület: 628 m2
Kert mérete: 628 m2
Erkély mérete: 23 m2
Felszereltség: -
Parkolás: -
Kilátás: -
Egyéb extrák:  
-
Hirdető adatai
Hirdető neve: Otthon Centrum
Hirdető telefonszáma: +36 70 412 5366