Pest megye, Dunavarsány
 

Ingatlan adatai
Irányár: 119 000 000 Ft
Típus: ház
Kategória: eladó
Alapterület: 109 m2
Fűtés: -
Állapota: új
Szobák száma: 4
Építés éve: 2026
Szintek száma: -
Részletes leírás
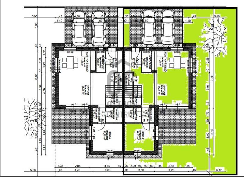
Dunavarsányon Kisvarsányi részén, 3 percre az állomástól, újépítésű ikerház eladóHáz✅️téglaépítésű✅️2 szintes 3 hálószobás, 2 fürdőszobás✅️földszinten 1 háló, nappali, konyha-étkező és fürdőszoba✅️emeleten 2 háló, fürdőszoba és előszoba✅️telek 340 nm saját telekMűszaki Paraméterek:✅️30Nf Porotherm tégla✅️vasbeton sávalap✅️10cm porotherm válaszfal✅️5 légkamrás 3 rétegű nyílászárok✅️15cm homlokzati hőszigetelés✅️Terrán antracit cserépfedés✅️Hőszivattyús meleg víz és fűtésrendszer, padlófűtéssel✅️Hidegburkolatok választhatók 8000ft nm✅️Melegburkolatok választhatók 6000ft nmExtrák✅️burkolt terasz✅️3D kerítés rendszer, elektromos tolókapuval✅️riasztórendszer előkészítés✅️elektromos redőny előkészítés✅️térkövezett gépkocsibeállóHitel, CSOK, Otthon Start igényelhető.Várható átadás: 2027. április vége25 % önerővel szükséges a szerződéskötéshezA társasház előzetes energetikai besorolása AHívjon bizalommal!
További adatok
Telekterület: 679 m2
Kert mérete: 679 m2
Erkély mérete: 20 m2
Felszereltség: -
Parkolás: -
Kilátás: -
Egyéb extrák:  
-
Hirdető adatai
Hirdető neve: Otthon Centrum
Hirdető telefonszáma: +36 70 461 9296