Pest megye, Kóka
 

Ingatlan adatai
Irányár: 61 990 000 Ft
Típus: ház
Kategória: eladó
Alapterület: 101 m2
Fűtés: -
Állapota: új
Szobák száma: 4
Építés éve: 2025
Szintek száma: -
Részletes leírás
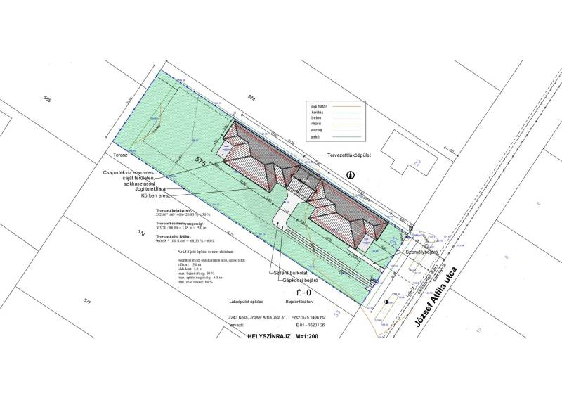
Eladásra kínálunk Kókán, a József Attila utcában egy 1406 m2-es telken épülő, két lakásból álló projektet. A házak tervezésénél a privát szféra volt az elsődleges szempont: a lakóegységek kizárólag a fedett gépkocsibeállóknál érintkeznek, közös lakófaluk nincs.Elérhető egységek és telekhányadok:-Utcafronti lakás: 101,45 m2 nettó alapterület + 472 m2 saját telekrész.-Hátsó lakás: 101,45 m2 nettó alapterület + 934 m2 saját telekrész.Műszaki paraméterek és hőszigetelés:-Falazat: 30-as Nútféderes tégla, fafödémmel és betoncserép héjazattal.-Szigetelés: 15 cm-es homlokzati EPS, 10 cm-es lépésálló aljzat- és 30 cm-es födém szigetelés.-Nyílászárók: 3 rétegű üvegezéssel ellátott, 6 légkamrás műanyag profilok.-Gépészet: Modern hőszivattyús rendszer gondoskodik a fűtésről, minden helyiségben komfortos padlófűtéssel.Választható burkolatok és felszereltség (az árban):A belső kialakítás a vevő ízlésére bízott az alábbi keretösszegekig:-Hideg- és melegburkolatok: 3000 Ft/m²-Beltéri ajtók: 32.000 Ft/db-Fürdőkád: 40.000 Ft | Csaptelepek: 15.000 Ft/db(Igény esetén a keretösszeg feletti választás is megoldható a különbözet megfizetésével.)-Elektromos hálózat: Szobánként 3, a nappaliban 4, a konyhában pedig 6 aljzat kerül kialakításra. A TV-, internet- és riasztórendszer, valamint az elektromos kapu előkészítése szintén a műszaki tartalom részét képezi.Extrák és környezet:A telek határait esztétikus, színezett zsalukő kerítés díszíti fa lécezéssel. A kivitelező megbízható, munkái előre egyeztetett időpontban referenciaként megtekinthetőek.Pénzügyi segítségre van szüksége?Bankfüggetlen hitelcentrumunk díjmentesen segíti Önt a legkedvezőbb konstrukció kiválasztásában!CSOK Plusz és Otthon Start teljes körű ügyintézés.Egyedi kamatkedvezmények, melyek közvetlenül a bankfiókokban nem elérhetőek.Gyors hitelképesség-vizsgálat és teljes hivatali ügyintézés.Bővebb információért vagy megtekintési időpontért keressen bizalommal a hét bármely napján!
További adatok
Telekterület: 1 000 m2
Kert mérete: 1 000 m2
Erkély mérete: 13 m2
Felszereltség: -
Parkolás: -
Kilátás: udvari
Egyéb extrák:  
-
Hirdető adatai
Hirdető neve: Intor Ingatlan Powered By RH
Hirdető telefonszáma: +36 70 412 5808