Pest megye, Érd
 

Ingatlan adatai
Irányár: 119 900 000 Ft
Típus: ház
Kategória: eladó
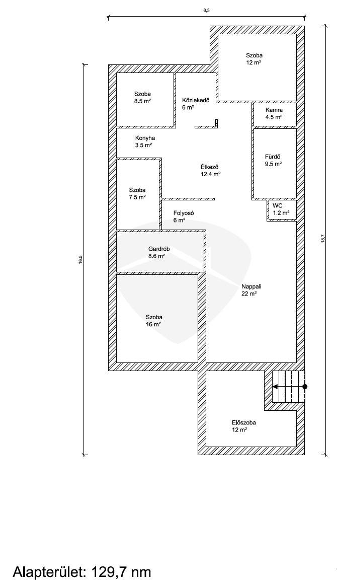
Alapterület: 130 m2
Fűtés: gáz (cirko)
Állapota: -
Szobák száma: 2+2
Építés éve: 1980
Szintek száma: -
Részletes leírás
Érd egyik nyugodt, aszfaltozott utcájában kínálunk megvételre egy kiváló elosztású, otthonos családi házat, amely ideális választás nagyobb családok számára is.Az ingatlan átgondolt tervezésének köszönhetően minden helyisége tágas és rendkívül világos. A lakótér elosztása a mindennapi kényelmet szolgálja:22 m²-es nappali, a családi együttlétek központja16 m²-es master bedroom, amelyhez egy 8,5 m²-es, saját gardrób kapcsolódik12 m²-es hálószoba8,5 m²-es szoba7,5 m²-es szobaA konyha–étkezőhöz tartozó kamra praktikus tárolási lehetőséget biztosít, míg a 12 m²-es előszoba kényelmes érkezést és elegendő tároló helyet kínál a mindennapokban.A 710 m²-es, gondozott telken a lakóépületen kívül egy 10 m²-es tároló is helyet kapott, amely ideális kerti eszközök vagy egyéb felszerelések elhelyezésére.Az udvaron több gépjármű parkolása megoldott, valamint elektromos autó töltésére is van lehetőség, ami jelentős előnyt jelent a modern igényekhez igazodva.Az utcafront felől tömör kerítés gondoskodik az intimitásról, az ingatlan fenntartása pedig kedvező rezsiköltségekkel jár.Ez az ingatlan kiváló választás mindazok számára, akik csendes környezetben, mégis jól élhető, modern otthont keresnek Érden.
További adatok
Telekterület: 710 m2
Kert mérete: 710 m2
Erkély mérete: -
Felszereltség: -
Parkolás: -
Kilátás: udvari
Egyéb extrák:  
-
Hirdető adatai
Hirdető neve: Freecs Kft.
Hirdető telefonszáma: +36 20 970 8697