Pest megye, Diósd
 

Ingatlan adatai
Irányár: 144 900 000 Ft
Típus: ház
Kategória: eladó
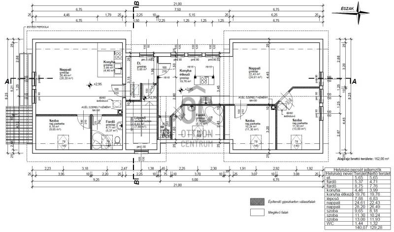
Alapterület: 129 m2
Fűtés: -
Állapota: -
Szobák száma: 5
Építés éve: 2007
Szintek száma: -
Részletes leírás
Diósd csendes, mégis autópálya-közeli részén egyben eladó két különálló, felújított lakás, kifejezetten befektetőknek és készpénzes vevőknek ajánlva.Az ingatlanok adatai:Lakás 1: nettó 43,5 nm / bruttó 50 nmLakás 2: nettó 73 nm / bruttó 81 nmÖsszesen: nettó 129,28 nm / bruttó 140 nmMindkét lakás felújított, bútorozatlanAzonnal kiadható vagy költözhetőMiért erős befektetés?Két külön lakás = két bérleti díjMagas kiadhatóság, stabil kereslet a környékenIdeális hosszú távú vagy rövid távú bérbeadásraAutópálya pár percre, mégis nyugodt, zajmentes környezetAlacsony fenntartási költségekÉrtékálló lokáció, jó hozamlehetőségA lakások külön-külön és egyben is használhatók, így a befektetési stratégia rugalmasan alakítható.???? Elsősorban egyben eladó – kiváló csomag befektetők számára!Készpénzes vevők előnyben.További információért, árért vagy megtekintés egyeztetéséhez várom megkeresését!
További adatok
Telekterület: 524 m2
Kert mérete: 524 m2
Erkély mérete: -
Felszereltség: -
Parkolás: -
Kilátás: -
Egyéb extrák:  
-
Hirdető adatai
Hirdető neve: Otthon Centrum
Hirdető telefonszáma: +36 70 388 5581