Pest megye, Inárcs
 

Ingatlan adatai
Irányár: 47 000 000 Ft
Típus: kereskedelmi/ipari ingatlan
Kategória: eladó
Alapterület: 2 860 m2
Fűtés: -
Állapota: -
Szobák száma: -
Építés éve: 2026
Szintek száma: -
Részletes leírás
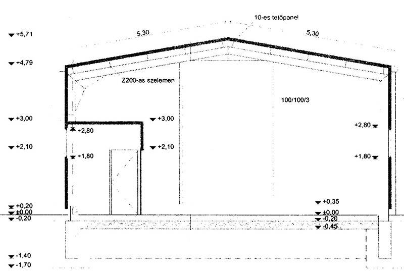
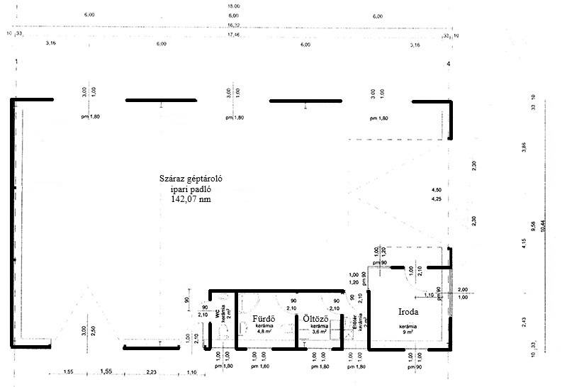
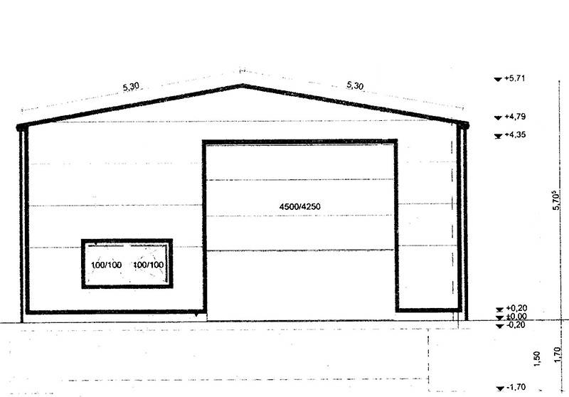
Inárcs nagyközség ipari övezetében 2860 nm területtel rendelkező telek eladó. Az utcafronti szélessége 23 méter. A területre építési terv készült, amely egy 163 nm területű csarnok kivitelezésére alkalmas és még érvényességi időn belüli a terv. A vételárba beleszámít ennek a tervezett csarnoknak az elkészített, de még nem telepített fém vázszerkezete. Az ipari területet a vasútállomás irányából lehet megközelíteni. Megnevezése: kivett ipartelep. A közműszolgáltatások közül a víz és áram a telek előtt rendelkezésre állnak. Beépíthetősége 40 %, épületmagasság 12 méter. Amennyiben érdekes lehet önnek ez az ingatlan, kérem, keressen a megadott elérhetőségen.
További adatok
Telekterület: -
Kert mérete: -
Erkély mérete: -
Felszereltség: -
Parkolás: -
Kilátás: -
Egyéb extrák:  
-
Hirdető adatai
Hirdető neve: Nagy Ingatlan
Hirdető telefonszáma: 06-70-77-22-430