Zala megye, Hévíz
 

Ingatlan adatai
Irányár: 124 800 000 Ft
Típus: lakás (tégla)
Kategória: eladó
Alapterület: 98 m2
Fűtés: egyéb
Állapota: -
Szobák száma: 4
Építés éve: 2022
Szintek száma: -
Részletes leírás
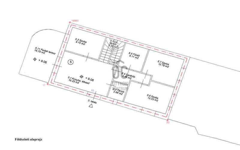
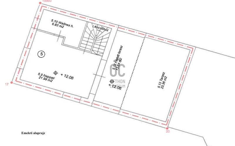
Energiahatékony, modern kialakítású, azonnal költözhető lakás saját kerttel és páratlan városi panorámával!Hévíz nyugodt, exkluzív részén kínáljuk megvételre ezt a 2022-ben épült, családi ház jellegű, kétszintes prémium lakást, amely a telek felső, intim részén helyezkedik el, 245 m² saját kertkapcsolattal. Az ingatlan ideális választás állandó lakhatásra, nyaralónak vagy befektetésnek egyaránt. FŐBB JELLEMZŐK:-Hasznos alapterület: 98 m²-Összterület teraszokkal: közel 150 m²-Saját kert : 245m²-Építés éve: 2022- belső két szintes -Energetikai besorolás: BB – energiahatékony MŰSZAKI TARTALOM– hosszú távra tervezve-Falazat/Szigetelés :30 cm-es Porotherm tégla, 15 cm homlokzati hőszigetelés, 30 cm födémszigetelés-Minőségi tetőszerkezet cserépfedéssel-7 kW-os napelemes rendszer (még 7 évig szaldóelszámolással)-Rendkívül alacsony fenntartási költségek- Áram erősség : 3x25 A + 1X 32 A❄️Komfort minden évszakban-Padlófűtés, elektromos radiátorok-3 db hűtő-fűtő klíma-Elektromos melegvíz-ellátás-3 rétegű üvegezésű műanyag nyílászárók-Távirányítású, motoros alumínium redőnyök + szúnyoghálók Helyiségkiosztás – átgondolt, élhető terekFöldszint:-Konyha–étkező (kertkapcsolattal)-3 szoba-Fürdőszoba + WC-Gardrób, tároló-18 m²-es fedett teraszEmelet:-Tágas nappali-Fürdőszoba + WC-36 m²-es panorámás terasz, részben fedett-grillkonyha, jakuzzi-előkészítés-lenyűgöző kilátás Hévíz városára ????Extra előnyök-22 m²-es fedett gépkocsi-beálló tároló résszel-Gondozott kert és udvar-Teljesen elkészült épület (burkolatok, szaniterek, világítás)-Azonnal költözhető-Konyhabútor saját igény szerint alakítható az új tulajdonos által Ez az ingatlan nem kompromisszum, hanem tudatos döntés:modern technológia, prémium életérzés, örökpanoráma és alacsony rezsi egyetlen otthonban. Keressen bizalommal további információért vagy megtekintésért – ez a lehetőség ritka Hévízen!
További adatok
Telekterület: -
Kert mérete: -
Erkély mérete: 54 m2
Felszereltség: -
Parkolás: -
Kilátás: udvari
Egyéb extrák:  
-
Hirdető adatai
Hirdető neve: Otthon Centrum
Hirdető telefonszáma: +36 70 412 5631