Pest megye, Sződ
 

Ingatlan adatai
Irányár: 139 000 000 Ft
Típus: ház
Kategória: eladó
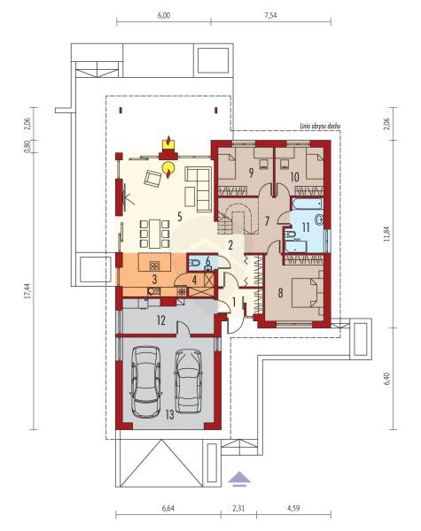
Alapterület: 128 m2
Fűtés: -
Állapota: új
Szobák száma: 5
Építés éve: 2026
Szintek száma: -
Részletes leírás
Fedezze fel álmai otthonát Sződön! Ez a modern, új építésű ház 128 négyzetméteres alapterülettel és 1234 négyzetméteres telken várja új tulajdonosát.Az ingatlan öt szobával és egy fürdőszobával rendelkezik, és külün Wc-vel amely elegendő teret biztosít a család minden tagjának. A prémium kivitelezés és az egyedi tervezés garantálja, hogy otthona nemcsak esztétikus, hanem rendkívül funkcionális is. A 17 négyzetméteres terasz ideális helyszín a családi összejövetelekhez vagy a pihenéshez, ahol a friss levegő és a napfény minden nap elkíséri Önt. Az ingatlan hőszivattyús fűtéssel és légkondicionálóval van felszerelve, így a kényelme mindig garantált.A környék adottságai páratlanok. Sződ csendes, nyugodt település, ahol a természet közelsége és a barátságos szomszédok garantálják a kellemes életkörülményeket. A helyi szolgáltatások, mint boltok, éttermek és iskola könnyen elérhetők, így minden szükséges dolog a közelben áll rendelkezésre. Emellett a környék biztonságos, ami különösen fontos a családosok számára.Közlekedési szempontból is ideális választás: az ingatlan könnyen megközelíthető autóval, és a tömegközlekedési lehetőségek is széleskörűek, így a város központja és a környező települések gyorsan elérhetők. Az autóval közlekedők számára az önálló garázs, amely két autó számára biztosít helyet, jelentős előnyt nyújt.Ne habozzon, ha felkeltette érdeklődését ez a különleges ingatlan! Kérjük, keressen minket további kérdésekkel vagy a megtekintés időpontjának egyeztetésével. Az álmai otthona csak egy lépésnyire van!
További adatok
Telekterület: 1 234 m2
Kert mérete: 1 234 m2
Erkély mérete: 17 m2
Felszereltség: -
Parkolás: -
Kilátás: udvari
Egyéb extrák:  
-
Hirdető adatai
Hirdető neve: Nagy Ingatlan Powered by RH
Hirdető telefonszáma: +36 70 628 7088