Fejér megye, Pusztaszabolcs
 

Ingatlan adatai
Irányár: 83 900 000 Ft
Típus: ház
Kategória: eladó
Alapterület: 117 m2
Fűtés: gáz (cirko)
Állapota: -
Szobák száma: 3
Építés éve: 1975
Szintek száma: -
Részletes leírás
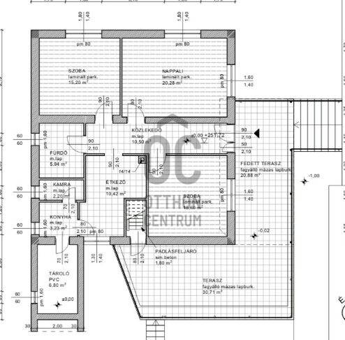
Kivételes lehetőség családosok számára! Eladó frissen felújított, kiváló állapotú ház Fejér vármegye gyönyörű településén, Pusztaszabolcson.Ez az ingatlan nem csupán egy otthon, hanem egy lehetőség arra, hogy egy csendes, mégis jól ellátott környezetben éljen, ahol a család minden tagja megtalálja a számításait. A ház alapterülete 117 nm, mely tökéletesen elosztott három tágas szobával rendelkezik. A világos nappali ideális helyszín a családi együttlétekhez, míg a 52 nm-es terasz a nyári estéken kínál kellemes pihenési lehetőséget. A telek mérete 1117 nm, amely elegendő helyet biztosít a gyerekeknek a szabadban való játékhoz, valamint a kerti tárolóban tárolhatja a szükséges eszközöket. A ház fűtése gáz cirkóval megoldott, a hűtésről pedig klíma gondoskodik, így az ingatlan egész évben kellemes hőmérsékletet biztosít. A garázsban két autó kényelmesen elfér, ami különösen előnyös lehet a családosok számára. Az ingatlan elhelyezkedése kiváló, hiszen közlekedési csomópont közelében található, így a kitűnő közlekedés lehetőséget biztosít a város más részeire való könnyű eljutásra. A környék ellátottsága szintén figyelemre méltó, hiszen minden fontos szolgáltatás, mint boltok, iskola és orvosi rendelő, könnyedén elérhető. A csendes környezet és a biztonságos szomszédság ideális helyszínt biztosít a családok számára, akik értékelik a nyugodt életstílust. A ház bővítési lehetőségeket is kínál, így ha bővíteni szeretnék a családot, vagy egyszerűen csak nagyobb térre van szükségük, ez az ingatlan tökéletes választás. A családi ház 38-as téglából épült. A fűtés és meleg vízellátást kondenzációs gázkazán biztosítja radiátorral.Nappaliba hűtő-fűtő klíma lett még beépítve. Szobákban laminált parketta a többi helyiségben járólap. Teljes fürdőszoba, új tetőszerkezet, kondenzációs kazán, fűtésrendszer, új radiátoroknyílászáró csere ablak,ajtó, redőnnyel, szúnyoghálóval felszerelve, plussz a födém szigetelése 25 cm üveggyapottal.Az épületen belül, de külső bejárattal az épület alatti 30 nm-es pincébe jutunk. A ház déli oldalán 52 nm terasz található, ebből a bejáratnál 21 nm-es rész fedett.Garázs 30 nm (szerelőaknás) + 60 nm (ipari árammal)Nyári konyha 25 nm + öltöző 16 nm + Műhely, tároló 15 nmKét kapubeálló van így kerten belül több gépkocsi parkolására van lehetőség.A kertben több féle gyümölcsfa, a locsolás ásott kútról megoldott.Az ingatlan csendes utcában van, kedves szomszédokkal.A tulajdonosok, megbeszélés szerint a ház bútorzatát az új tulajdonosnak adják.Hitelre alkalmas!Az ingatlan tehermentes, így azonnal birtokba vehető. Ne habozzon, hiszen egy ilyen lehetőség nem mindennapi! Ha bármilyen kérdése van az ingatlannal kapcsolatban, bizalommal kereshet minket. Szívesen segítünk Önnek, hogy megtalálja álmai otthonát vagy befektetési lehetőségét.Pusztaszabolcs az M6-os autópályáról közelíthető meg de az M7-ről is elérhető.Pusztaszabolcsi vasútállomás és a buszmegálló 5-7 perc sétá.A Velencei-tó 14 km, Dunaújváros 31 km, Székesfehérvár 34 km, Budapest 50 km távolságban van.A közelben található, iskola, óvoda, játszótér, vásárlási, sportolási lehetőség, orvosi rendelő, gyógyszertár.
További adatok
Telekterület: 1 117 m2
Kert mérete: 1 117 m2
Erkély mérete: 50 m2
Felszereltség: -
Parkolás: -
Kilátás: -
Egyéb extrák:  
-
Hirdető adatai
Hirdető neve: Otthon Centrum
Hirdető telefonszáma: +36 70 412 3716