Budapest, XVII.kerület
Rákoskeresztúr 

Ingatlan adatai
Irányár: 59 900 000 Ft
Típus: lakás (panel)
Kategória: eladó
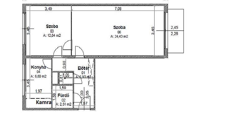
Alapterület: 54 m2
Fűtés: távfűtés
Állapota: -
Szobák száma: 2
Építés éve: -
Szintek száma: -
Részletes leírás
XVII. KERÜLETBEN: RÁKOSKERESZTÚRON, KASZÁLÓ UTCÁBAN, ELADÓ EGY II EMELETI, 54 M2-ES, KÖZEPES ÁLLAPOTÚ, ERKÉLYES, 2 SZOBÁS LAKÁS. A LAKÁSHOZ KÖZEL TALÁLHATÓ A RÁKOSPATAK, MELY MENTÉN KELLEMES SÉTÁKRA ÉS BICIKLIZÉSRE IS LEHETŐSÉG NYÍLIK.A LAKÁS JELLEMZŐI:A nyílászárók minden helyiségben ki lettek cserélve, redőnnyel el lettek látva. A konyha, világos, nagy ablakkal ellátott. A fürdőszoba kádas, a mellékhelyiség külön lett kialakítva. Minden helyiség járólappal burkolt.A konyhabútor és a beépített bútorzat a vételár részét képezi.ELRENDEZÉS: nappali, hálószoba, konyha + étkező, kádas fürdőszoba, mellékhelyiség, előszoba, közlekedő, erkély.A KÖRNYÉK ÉS A KÖZLEKEDÉS:Közelben, pár perc sétára található bevásárlási lehetőség, piac, gyógyszertár, bölcsőde, óvoda, iskola, játszótér, uszoda. A lépcsőház folyamatosan karbantartott, rendezett lakóközösséggel rendelkezik. A közelben a következő tömegközlekedési lehetősége elérhetőek:161 A, 46, 97 E, 161, 161 E, 162, 162 A, 169 E, 195, 198, 202 E, 261 E, 262 buszok, valamint a 956, 990, 998 éjszakai járatok. IRÁNYÁR: 59.9 M Ft.Banki finanszírozással is megvásárolható!VEVŐINK RÉSZÉRE A KÖZVETÍTÉS DÍJTALAN!A hirdetésben szereplő adatok tájékoztató jellegűek.
További adatok
Telekterület: -
Kert mérete: -
Erkély mérete: -
Felszereltség: -
Parkolás: -
Kilátás: kertre néző
Egyéb extrák:  
-
Hirdető adatai
Hirdető neve: MPD Hungary Kft.
Hirdető telefonszáma: +36705048744