Budapest, II.kerület
Rézmál 

Ingatlan adatai
Irányár: 152 000 000 Ft
Típus: lakás (tégla)
Kategória: eladó
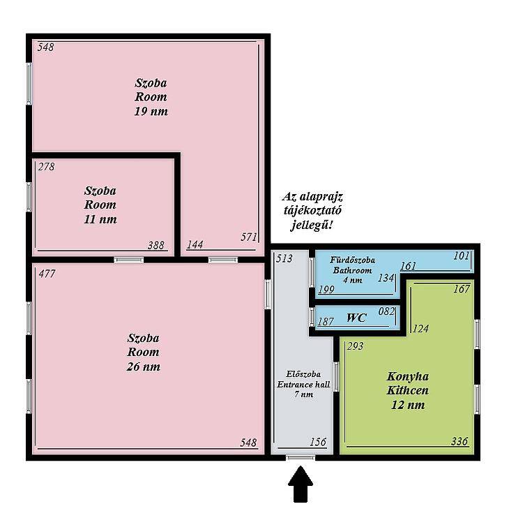
Alapterület: 81 m2
Fűtés: gáz (cirko)
Állapota: -
Szobák száma: 3
Építés éve: 1910
Szintek száma: -
Részletes leírás
RITKA LEHETŐSÉG A PIACONSzerkezetkész, galériás, napfényes lakás eladó ahol Ön álmodhatja meg az otthonátKépzeljen el egy lakást, amelynek minden részletét saját elképzelése szerint alakíthatja. Egy teret, ahol a 3,80 méteres belmagasság, a déli napfény és a galériás megoldások olyan egyedi atmoszférát teremtenek, amelyet kevés ingatlan tud nyújtani.Ez a szerkezetkész lakás kivételes alapot ad ahhoz, hogy Ön valami igazán különlegeset hozzon létre: személyre szabott otthont vagy egy értékálló, könnyen kiadható befektetést.Mi teszi ezt az ingatlant különlegessé?-Szerkezetkész állapot teljes szabadság a belső terek kialakításában-Két külön hálószoba, mindegyik saját galériával, ami extra helyet és praktikumot biztosít-Tágas, rendkívül világos nappali nagy ablakokkal-Külön fürdő és külön WC modern, keresett elrendezés-Önálló, ablakos konyha galériás tároló hellyel-Déli és délkeleti tájolás egész nap napfényes, kellemes klímájú terek-Impozáns, 3,80 méteres belmagasság, amely loft-hangulatot és extra térérzetet ad-Világos, szellős, könnyen alakítható nagy terek-Kiváló lokáció: csendes mellékutcában, mégis néhány perc sétára minden fontos szolgáltatástól:boltok, Mammut bevásárlóközpont, tömegközlekedési csomópontok, éttermek, szolgáltatásokFontos információ a hirdetés képei kapcsánA hirdetésben szereplő látványtervek azt mutatják be, hogyan nézhet ki a lakás egy felújítást követően, és milyen potenciál rejlik benne. A jelenlegi tulajdonos azonban a felújítást nem fogja elvégezni a kialakítás teljes mértékben az új tulajdonosra vár. Ez valódi lehetőséget jelent arra, hogy a lakás pontosan olyan legyen, amilyet megálmodott.Az ár irányár!
További adatok
Telekterület: -
Kert mérete: -
Erkély mérete: -
Felszereltség: -
Parkolás: -
Kilátás: utcai
Egyéb extrák:  
-
Hirdető adatai
Hirdető neve: MPD Hungary Kft.
Hirdető telefonszáma: +3613361706