Budapest, XVI.kerület
XVI. kerület, Petőfikert 

Ingatlan adatai
Irányár: 83 000 000 Ft
Típus: lakás (újépítésű)
Kategória: eladó
Alapterület: 62 m2
Fűtés: -
Állapota: új
Szobák száma: 4
Építés éve: 2026
Szintek száma: 2
Részletes leírás
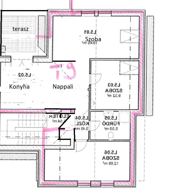
Csak irodánk kínálatában!16.kerület legkedveltebb részén, Ómátyásföldön, igényes környezetben, újépítésű álomlakás nagy terasszal eladó 9 lakásos házban, gépkocsibeállóval.Az ingatlan rendkívül magas műszaki színvonalon kivitelezett lakóházban, nappali + 3 hálós, PENTHOUSE jellegű nagyon világos, nettó 62 m2-es, nagy teraszos lakás, 15 m2 es terasszal, burkolatválasztási lehetőséggel eladó.lakás: 83 millió FtAutóbeálló: 3 millió FtÖsszesen: 83 millió FtA lakás minimum 50% ÖNERŐVEL megvásárolható!Helyiséglista:- Nappali: 19.45 m2- Konyha: 11.26 m2- Fürdő: 5.50 m2- Közlekedő: 3.45 m2- Hálószoba I.: 9.32 m2- Hálószoba II.: 12.69 m2- Hálószoba III.: 19,45 m2- Terasz: 15 m2Műszaki tartalom:30 PHT hőszigetelő tégla12 cm-es grafitos drywith hőszigetelésAlumínium, szinterezett, hőszigetelt, 3 rétegű nyílászárók.Teraszokon üvegkorlátokFűtés: hőszivattyú padlófűtésselA burkolatok választhatóak:- Hideg burkolat 8000 ft/m2- Meleg burkolat 6000 ft/m3- Ajtók: 100 ezer/db- Szaniterek a fürdőszobában bruttó 300.000 Ft értékben választhatók.Konyhabútor: nincsSzobákban inverteres hűtő fűtő klímaA környék infrastruktúráját tekintve, rendkívül jól ellátott. Közelben több buszjárat, séta távra, valamint az Örs Vezér Tér csupán 15 perces buszúttal elérhető.- Közelben számos ABC, a 16. kerületi piac, valamint LIDL és Aldi SPAR, TESCO Express is megtalálható.- Az Erzsébetligeti uszoda, valamint futópálya és fittness park gyalogosan 4 perc.- A BGE Főiskola Külkereskedelmi szaka 10 perc sétára található!Amennyiben felkeltette érdeklődését a lehetőség, várom hívását, AKÁR HÉTVÉGÉN IS!
További adatok
Telekterület: -
Kert mérete: -
Erkély mérete: 15 m2
Felszereltség: -
Parkolás: -
Kilátás: kertre néző
Egyéb extrák:  
-
Hirdető adatai
Hirdető neve: Marianna Osztermayer
Hirdető telefonszáma: 06306132050