Részletes leírás
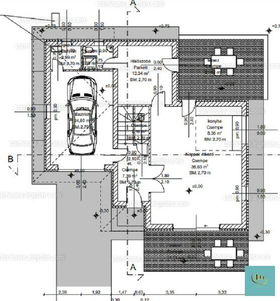
Szentendrén, Pismány alsó részén, könnyen megközelíthető helyen, ÖRÖK PANORÁMÁS, Dél-nyugati fekvésű, ÚJÉPÍTÉSŰ, napfényben fürdő, IGÉNYES , nappali+ 4 szobás, amerikai konyhás GARÁZSOS, KOCSIBEÁLLÓS kivitelezésű családi ház, számos referenciával rendelkező beruházótól , INTIM kerttel , kulcsrakész állapotban eladó.Műszaki tartalom:30-as Porother xtherm hőszigetelő téglaPorotherm 30 X-therm tégla \"X\" alakú bordaszerkezetén keresztül a hő hosszabb utat tesz meg, ezáltal hagyományos tégláinkhoz képest akár 50%-kal jobb a hőszigetelő képessége. Megerősített bordaszerkezete ellenállóbb a mechanikai hatásokkal szemben. Javított hangszigetelő képességű.12 cm-es drywith hőszigetelés3 rétegű, hőszigetelt nyílászárókklíma előkészítésriasztó előkészítésburkolatválasztási lehetőség:hidegburkolat: 8000 Ft/m2melegburkolat: 5000 Ft/m2beltéri ajtók: 80.000 Ft/db-ért választhatókA földszinten található:Nappali amerikai konyhával, dupla teraszkapcsolattal, 44,39 m2hálószoba 13,34 m2előszoba: 7,39 m2garázs: 24,8 m2háztatási helyiség (garázsból nyílik): 2,99 m2külön wc: 2,99 m2lépcsőér: 2,70 m2terasz (panorámás) 21,02terasz: 17, 23A dupla teraszok különböző fekvésének köszönhetően, minden napszakban élvezhető egy forró nyári napon valamelyik terasz.Az emeleten található:hálószoba: 13,34 m2hálószoba: 13,88 m2hálószoba: 11,53 m2hálószoba: 11,62 m2fürdőszoba: 5,87 m2előszoba: 7,21 m2erkély: 5,68 m2erkély 8,91 m2VÁROM HÍVÁSÁT MINDEN NAP REGGEL 9-TŐL ESTE 10-IG.A KÖRNYÉKEN TALÁLHATÓ HASONLÓ IGATLANOKÉRT , KÉREM, HOGY KATTINTSON AZ IRODA TOVÁBBI HIRDETÉSEIRE, ill. érdeklődjön nálam az ezen az oldalon nem hírdetett ingatlanok iránt.