Budapest, III.kerület
III. kerület, Csillaghegy Duna felöli oldal 

Ingatlan adatai
Irányár: 224 000 000 Ft
Típus: ház
Kategória: eladó
Alapterület: 135 m2
Fűtés: -
Állapota: új
Szobák száma: 5
Építés éve: 2024
Szintek száma: -
Részletes leírás
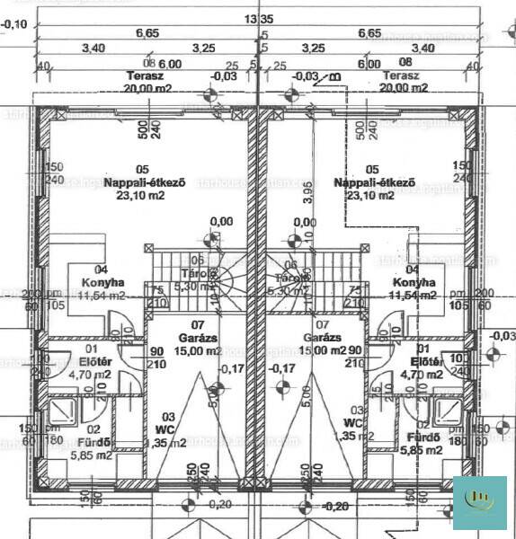
Bp. 3.kerület, Csillaghegyen, kifejezetten csendes utcában, kiváló közlekedésnél, Csillaghegy Duna felőli oldalán ,csendes családi házas övezetben eladó egy nappali-amerikai konyhás, saját, szeparált kerttel rendelkező nappali + 3 szobás ( a garázs átalakítható egy 4. szobává) , igényes kialakítású ikerfél, 20 m2-es terasszal garázzsal.A kisforgalmú, kertvárosi hangulatú utca infrastruktúrája kiváló. A közelben található a HÉV és a BKK. buszok megállói. A környéken számos bölcsőde, iskola, óvoda ,és bevásárlási lehetőség található.A Duna part és a Római part közelsége ,számos kikapcsolódási ,és sportolási lehetőséget kínál.A külön bejárattal rendelkező kert, és épületrészek egymástól szinte teljesen szeparáltak.A nappalihoz 24m2-es terasz, és külön kertrész kapcsolódik.A házhoz tartozik garázs, amely igény estén plusz szobává alakítható.Ezen kívül a ház mellett, több autó részére van beállási lehetősége is.A ház kívülről a színezésen kívül készen van. Belső munkák folynak jelenleg.Belső burkolatok, és ajtók még választhatóak, ár- értékhatárig.A lakás kb. szeptemberben költözhető.LEÍRÁS:Nappali +3szoba, igény szerint +1 szoba a garázsból kialakítható2 fürdőszobaParkolás: garázs, kerti beálló.Saját telekrész:313,5M2.MŰSZAKI LEÍRÁS:-30 cm-es falazat 10 cm-es grafitos hőszigeteléssel-10 cm-es válaszfalak-fűtés: hőszivattyú padlófűtéssel-tetőn 3 X10 cm-es kőzetgyapot hőszigetelés-3 rétegű üvegezésű, antracit szürke nyílászárók-redőnytokkal elektromos redőny előkészítése-acél bejárati ajtó-geberit wc-k-klíma alapszerelés-teljes 24 zónás riasztórendszer (nyílászárókon nyitásérzékelőkkel)-1 X32 Amper áram + H tarifa-opcionálisan Fancoil fűtésrendszer-elektromos garázskapu, elektromos kertkapu-kaputelefon-lemosható beltéri falfesték fehér alapszínben-napelem előkészítésA ház kívülről a színezésen kívül készen van. Belső munkák folynak jelenleg.Belső burkolatok és ajtók még választhatóak, ár- értékhatárig.Szeptemberi átadás.VÁROM MEGTISZTELŐ HÍVÁSÁT, AKÁR HÉTVÉGÉN IS.
További adatok
Telekterület: 313 m2
Kert mérete: 313 m2
Erkély mérete: -
Felszereltség: -
Parkolás: -
Kilátás: -
Egyéb extrák:  
-
Hirdető adatai
Hirdető neve: Marianna Osztermayer
Hirdető telefonszáma: 06306132050