Pest megye, Törökbálint
 

Ingatlan adatai
Irányár: 279 000 000 Ft
Típus: ház
Kategória: eladó
Alapterület: 284 m2
Fűtés: egyéb
Állapota: -
Szobák száma: 8
Építés éve: 1993
Szintek száma: -
Részletes leírás
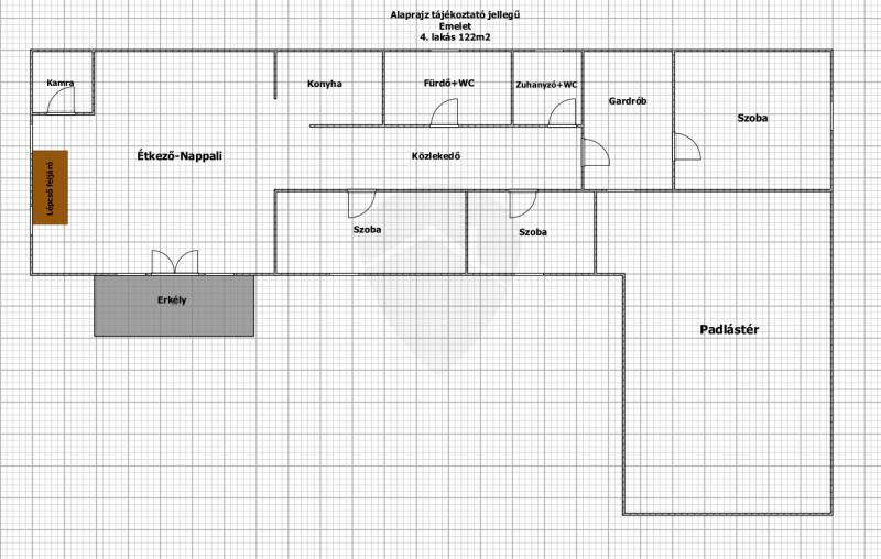
Sok lehetőséget rejtő családi ház eladó Törökbálinton!Eladó Törökbálint közkedvelt Újtelepi részén egy 573 m²-es telken álló, önálló családi ház, amely 4 különálló lakásként funkcionál– ideális választás nagycsaládosoknak, összeköltözőknek vagy befektetőknek!Az ingatlan 1993-ban épült, folyamatosan karbantartott, nettó 284 m² lakóterülettel rendelkezik. A ház két szinten helyezkedik el:Földszint – 3 külön bejáratú lakás:• 1-es lakás: 43 m²• 2-es lakás: 76,1 m²• 3-as lakás: 42,5 m²(Az elosztás megtekinthető az alaprajzon.)Emelet – egy tágas lakás:• 122 m²-es lakótérrel és saját erkéllyelA földszinten továbbá található egy 30 m²-es fedett terasz, a ház mögött pedig egy hangulatos kiülő, ideális helyszín baráti összejövetelekhez vagy családi pihenéshez.Műszaki jellemzők:• Külön mérőórák szintenként (villany, gáz)• Gázkazános fűtés padlófűtéssel• Ipari áram bekötve• Cserépfedés, szigetelt födém és homlokzat (5 cm-es szigeteléssel)• 2 állásos garázs• Gyűrűs kút locsoláshozA gondozott kert és az ingatlan elhelyezkedése csendes, családbarát környezetet biztosít, mégis könnyen megközelíthető a városközpont és az autópálya.Befektetésként is remek lehetőség:A ház többgenerációs otthonként is kiváló, de akár kiadásra is alkalmas a 4 külön lakóegység révén, ami biztos, folyamatos bevételt jelenthet új tulajdonosának.________________________________________Ne hagyja ki ezt a kivételes lehetőséget! Hívjon most, és tekintse meg személyesen ezt a sokoldalú ingatlant Törökbálinton!
További adatok
Telekterület: 573 m2
Kert mérete: 573 m2
Erkély mérete: 38 m2
Felszereltség: -
Parkolás: -
Kilátás: udvari
Egyéb extrák:  
-
Hirdető adatai
Hirdető neve: Royal Real Estates Powered by RH
Hirdető telefonszáma: +36 70 412 5713