Pest megye, Dunaharaszti
 

Ingatlan adatai
Irányár: 102 900 000 Ft
Típus: ház
Kategória: eladó
Alapterület: 85 m2
Fűtés: -
Állapota: új
Szobák száma: 4
Építés éve: 2026
Szintek száma: -
Részletes leírás
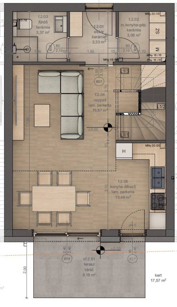
ÚJ ÉPÍTÉSŰ SORHÁZI LAKÁSOK , KIZÁRÓLAGOS HASZNÁLATÚ KERTRÉSSZEL!Dunaharasztin Bezerédi lakóparkban ,csendes kertvárosi részén, 9 lakásos társasházban, új építésű, kétszintes, nettó 80-90 m2-es, nappali + 2 és 3 háló szobás , gardróbos sorházi lakások, felszíni gépkocsibeállóval ,terasszal ,hozzá tartozó 20m2-120m2-es kizárólagos használatú kertrészekkel 2026 év Május végi átadással, kulcsrakészen eladók. .A hirdetésben szereplő ár a 2 -es számú ingatlanra vonatkozik még a tetőtérben tartozik hozzá egy kizárólagos használatú 20 m2-es TÁROLÓ és egy 20m2-es KIZÁRÓLAGOS HASZNÁLATÚ KERTRÉSZ is . Magas minőségű burkolatok, a hideg/meleg burkolat és a beltéri ajtók színe választható .Fűtése 9,5 KW-os hőszivattyúkról ,padlófűtés, használati meleg víz és lakásonként 2db beltéri klíma egységek is erről üzemelnek.Vasbeton sávalap, POROTHERM 25 N+F vázkerámia falazat 20 cm vastagságú EPS polisztirol szigeteléssel. Lakások elválasztása hanggátló 30 cm vastagságú POROTHERM Aku Z vázkerámia falakkal történik. Válaszfalak POROTHERM 10 N+F cm vastagságú vázkerámia falazóelemekből készülnek. Zárófödém: kőzetgyapot vagy fújt PUR 15 cm közötti vastagságban szarufák között.Nyílászárók műanyag, 7 légkamrás, 3 rétegű üvegezésű ablakok külső középszürke fóliával.Parkosított udvar, kamera előkészítés, kaputelefon kiépítés, elektromos kapu, kerti vízcsap , kizárólagos használatú tetőtéri tároló. Előkészítés elektromos autótöltéshez és napelemhez.Aktuális árlista:1. lakás – 114.900.000 Ft2. lakás – 102.900.000 Ft3. lakás – 105.900.000 Ft4. lakás – ELADVA5. lakás – ELADVA6. lakás – 117.900.000 Ft7. lakás – 106.900.000 Ft8. lakás – ELADVA9. lakás – ELADVAMagyarország piacvezető hitelközvetítője által egyedi kamatkedvezményekkel és bankfüggetlen, díjmentes hitelügyintézéssel is segítjük vásárlását. Amennyiben minimum 25 millió Ft. összegű ingatlanfedezetes hitelt vesz igénybe általunk 500 Euro értékű Club Karos Spa**** wellness utalványt adunk ajándékba. (Az akció kizárólag a Money Network ügynökhálózatán keresztül beadott és folyósított jelzáloghitelekre érvényes.)Hívjon bizalommal!
További adatok
Telekterület: 20 m2
Kert mérete: 20 m2
Erkély mérete: 8 m2
Felszereltség: -
Parkolás: -
Kilátás: -
Egyéb extrák:  
-
Hirdető adatai
Hirdető neve: RARIK-1986 Kft.
Hirdető telefonszáma: 06-70-542-1053