Tolna megye, Szekszárd
 

Ingatlan adatai
Irányár: 135 000 000 Ft
Típus: kereskedelmi/ipari ingatlan
Kategória: eladó
Alapterület: 253 m2
Fűtés: -
Állapota: -
Szobák száma: -
Építés éve: 1995
Szintek száma: -
Részletes leírás
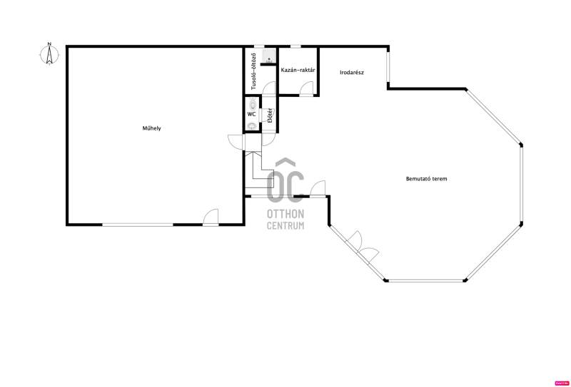
Frekventált helyen, korábban autó- és motor-szalonként működő üzlethelyiség várja új tulajdonosát.Az épület szigetelt, LINDAB szerkezetű csarnok.Az épület fűtése gázkazánnal megoldott, a bemutató terem részen padló fűtéssel, a műhely részen radiátoros fűtéssel.A nyári melegebb időszak klímával hűsíthető a bemutató teremnél.A műhely 2 beállásos, egyik szerelőaknás, ipari árammal, 100 m2 alapterületű. Menjünk, nézzük meg ezt a nem mindennapi ajánlatot!Teljes körű pénzügyi megoldások ügyintézése díjmentesen.Minden élethelyzetre végzünk pénzügyi elemzést - ha vásárolni szeretne, segítünk, hogy ezt a legjobb feltételek mellett tegye; ha eladni szeretné ingatlanát, nézzük meg, hátha érdemes meglévő hitelét átváltani.Keressen bizalommal, szakértők vagyunk!
További adatok
Telekterület: -
Kert mérete: -
Erkély mérete: -
Felszereltség: -
Parkolás: -
Kilátás: -
Egyéb extrák:  
-
Hirdető adatai
Hirdető neve: Otthon Centrum
Hirdető telefonszáma: +36 70 716 9966