Budapest, XVII.kerület
 

Ingatlan adatai
Irányár: 139 000 000 Ft
Típus: ház
Kategória: eladó
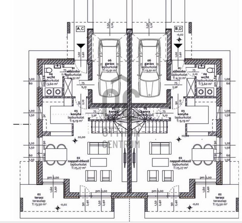
Alapterület: 121 m2
Fűtés: gáz (cirko)
Állapota: új
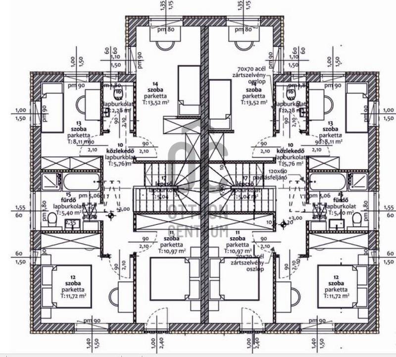
Szobák száma: 5
Építés éve: 2022
Szintek száma: -
Részletes leírás
Budapest XVII. kerületében, Rákoscsabán, minimál stílusú 121 nm-es ikerház épül! Áfa visszatérítés igénybe vehető!!!Az árban benne foglaltatik a telekár is.Az építkezés megkezdődött, jelen pillanatban az alap készületei folynak.A telek egy frekventált helyen található, ahová öröm lesz haza térni, hisz az Ön leendő otthona maga a nyugalom szigete.A nagyszerű tervezésnek köszönhetően, tágas terek, jó elosztás jellemzi a házat. Az ikerházak garázzsal és hangszigetelt fallal vannak elválasztva egymástól.Ezen a 227 nm-es telekhányadon egy 121 nm kétszintes ház épül. Az ikre ugyanilyen paraméterekkel rendelkezik. A telekrész teljes mértékben a megrendelő nevére kerül, kizárólagos használatra.Az emeleten 4 tágas szoba van, így többgyermekes családnak ideális, CSOK igényelhető.Az épülő ingatlanok a telek hátsó, csendes részén fognak épülni, zöld környezetben, ahova egy 4 méter széles úton lehet bejutni.Magas minőségi kivitelezés, megfelelő műszaki tartalom jellemzi a házat, ami minden igényt kielégít.Néhány paraméter, amit az ár tartalmaz:- Lékondi- 30-as klíma tégla- Kondenzációs kombi cirkó- Padlófűtés + radiátor- BB besorolás- Bemenő út burkolva- Elektromos kapu- KapucsengőAmennyiben el tudja képzelni a jövőjét ezen a csodaszép helyen, keressen bizalommal!
További adatok
Telekterület: 227 m2
Kert mérete: 227 m2
Erkély mérete: 14 m2
Felszereltség: -
Parkolás: -
Kilátás: -
Egyéb extrák:  
-
Hirdető adatai
Hirdető neve: Otthon Centrum
Hirdető telefonszáma: +36 70 388 5346