Budapest, XIX.kerület
 

Ingatlan adatai
Irányár: 349 000 000 Ft
Típus: ház
Kategória: eladó
Alapterület: 396 m2
Fűtés: gáz (cirko)
Állapota: -
Szobák száma: 7
Építés éve: 2000
Szintek száma: -
Részletes leírás
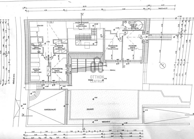
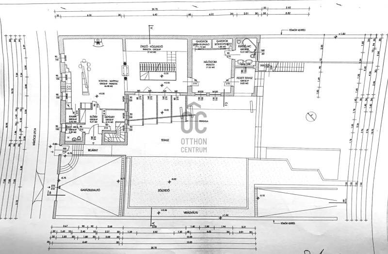
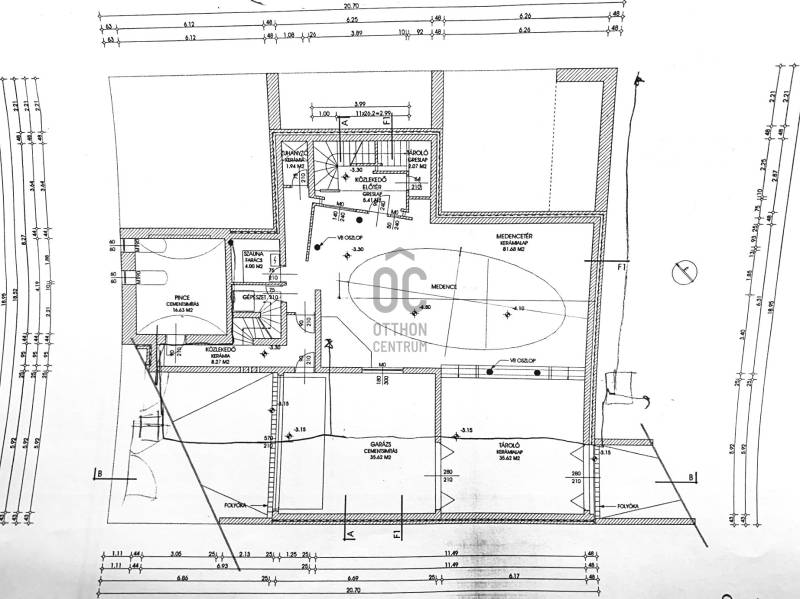
Wekerlén kínálom megvételre, ezt a korszerű élhető alaprajzú családi házat!-a szuterén szint alapterülete191m2, itt található a medencetér, a szauna, nagy méretű tárolók, és a két férőhelyes garázs beálló-a földszinten, mely 115m2 található a nagy méretű nappali étkező, egy mester háló fürdővel gardróbbal, és a háztartási helyiség wc-vel, mindegyik helyiség rendelkezik kijárattal a belső kertre, teraszra-az első szinten,mely 90m2 helyezkedik el a négy háló gardróbbal két fürdővel, és egy olvasószobával, ennek a szintnek a galériájáról letekinthetünk a földszinti térre-az épület meleg víz ellátását napkollektor segítiHa olyan házat keres ahol kompromisszumok nélkül élhet, jöjjön el, nézze meg jövendő otthonát, várjuk szeretettel!
További adatok
Telekterület: 712 m2
Kert mérete: 712 m2
Erkély mérete: 100 m2
Felszereltség: -
Parkolás: -
Kilátás: -
Egyéb extrák:  
-
Hirdető adatai
Hirdető neve: Otthon Centrum
Hirdető telefonszáma: +36 70 469 3761