Fejér megye, Pázmánd
 

Ingatlan adatai
Irányár: 10 900 000 Ft
Típus: telek
Kategória: eladó
Alapterület: 1 684 m2
Fűtés: -
Állapota: -
Szobák száma: -
Építés éve: -
Szintek száma: -
Részletes leírás
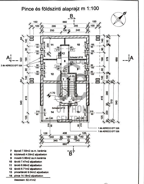
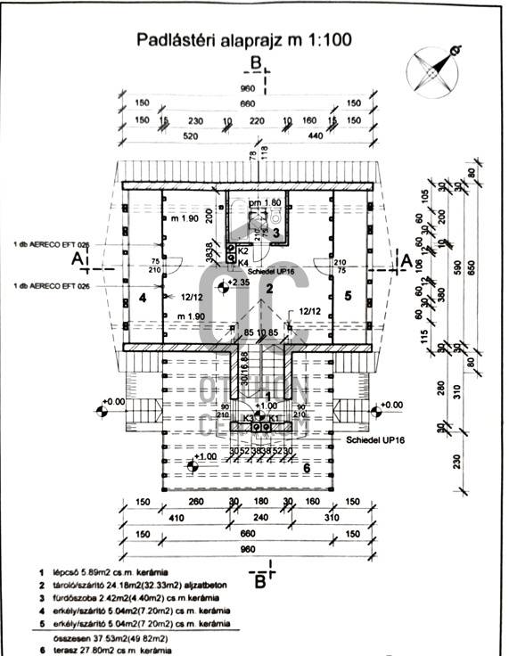
Fedezze fel álmai telkét Pázmándon – lehetőség a jövőjére!✨ Telek eladó Pázmándon! ✨✅ Panorámás, csendes környezet Fejér vármegyében✅ Rendezett utcában, aszfaltozott úton, kiválóan megközelíthető✅ 64 m mély fúrt kút a telken✅ Nappali–éjszakai áram bekötve✅ Tehermentes ingatlan✅ Lejárt építési terv – jól szemlélteti, milyen jellegű ingatlan építhető✅ Jó megközelíthetőség – autóval és tömegközlekedéssel isA telek ideális választás mindazoknak, akik nyugodt, természetközeli környezetben szeretnék megvalósítani álmaik otthonát vagy nyaralóját. A panorámás fekvés különleges hangulatot biztosít, míg a meglévő közművek – fúrt kút, nappali–éjszakai áram – a mindennapi élet alapfeltételeit teremtik meg.A környék ellátottsága kiváló: boltok, iskola, orvosi rendelő, valamint túra- és kerékpárutak rövid időn belül elérhetők. A közeli Székesfehérvár gazdag kulturális és történelmi programlehetőségekkel várja az ide költözőket.⏳ Azonnal birtokba vehető.Lehetőséget biztosítunk a személyes megtekintésre, és szívesen válaszolunk minden kérdésére.Vásárlását pénzügyi és jogi háttérrel biztosítjuk!Hívjon bizalommal!H–P 09:00–17:00, Sz 09:00–13:00
További adatok
Telekterület: 1 684 m2
Kert mérete: -
Erkély mérete: -
Felszereltség: -
Parkolás: -
Kilátás: -
Egyéb extrák:  
-
Hirdető adatai
Hirdető neve: Otthon Centrum
Hirdető telefonszáma: +36 70 716 8126