Szabolcs-Szatmár-Bereg megye, Nyíregyháza
 

Ingatlan adatai
Irányár: 43 900 000 Ft
Típus: ház
Kategória: eladó
Alapterület: 115 m2
Fűtés: -
Állapota: új
Szobák száma: 4
Építés éve: 2025
Szintek száma: -
Részletes leírás
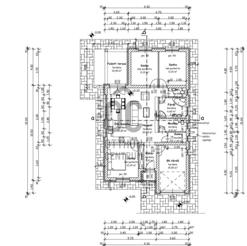
Remek lehetőség azoknak, akik saját ízlésük szerint szeretnék befejezni álmaik otthonát!Nyíregyháza egyik legkedveltebb, dinamikusan fejlődő részén, Újkistelekiszőlőben , eladó egy 115m²-es, garázzsal együtt tervezett családi ház, 720 m²-es telken.A környéket csendes, rendezett utcák és kizárólag új építésű házak jellemzik – ideális választás családoknak, akik nyugodt, biztonságos környezetre vágynak, mégis szeretnének közel maradni a városhoz.A ház félkész állapotban van, így a befejezést az új tulajdonos igényeihez lehet igazítani.✅ 115m² alapterület (garázzsal együtt)✅ 720 m²-es, szabályos telek✅ Kiváló lokáció, csendes és rendezett környék✅ Új építésű környezet✅ Kiváló ár-érték arány Ne hagyja ki ezt a kiváló lehetőséget – alakítsa saját igényei szerint új otthonát!További információért és megtekintésért hívjon bizalommal!A hirdetésben szereplő információk a megbízótól kapott adatok alapján készültek, pontosságukért felelősséget nem vállalunk! Az alaprajz csak tájékoztató jellegű!Az energetikai tanúsítvány készítése folyamatban van, amint rendelkezésre áll, úgy azzal a hirdetés frissítésre kerül.Amennyiben vásárláshoz hitelre is szüksége van, független hitel tanácsadónk ingyenesen tud Önnek segítséget nyújtani a legjobb konstrukciók kiválasztásában és a folyamat lebonyolításában. Irodánk kereső ügyfeleinknek teljes körű szolgáltatást nyújt, szakszerű tanácsadással, energetikai tanúsítvány elkészítésével, hitelügyintézéssel és profi ügyvédi segítséggel. Abban az esetben ha az ingatlan felkeltette érdeklődését keressen bizalommal!
További adatok
Telekterület: 720 m2
Kert mérete: 720 m2
Erkély mérete: 10 m2
Felszereltség: -
Parkolás: -
Kilátás: -
Egyéb extrák:  
-
Hirdető adatai
Hirdető neve: Otthon Centrum
Hirdető telefonszáma: +36 70 469 3361