Budapest, XVI.kerület
 

Ingatlan adatai
Irányár: 70 000 000 Ft
Típus: ház
Kategória: eladó
Alapterület: 64 m2
Fűtés: gáz (cirko)
Állapota: -
Szobák száma: 3
Építés éve: 1964
Szintek száma: -
Részletes leírás
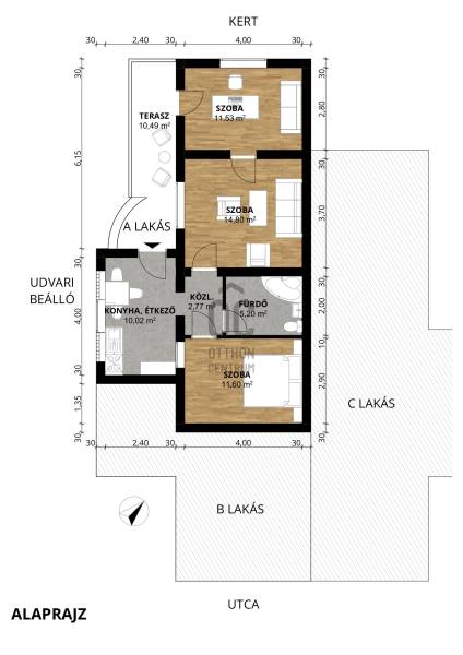
A 16. kerület egyik legkedveltebb, nyugodt részén, az Imre utcai HÉV-megálló közelében eladó egy jó állapotú, 3 szobás, teraszos házrész saját kertrésszel.Főbb jellemzők• 3 szoba + terasz• Étkezős konyha, közlekedő, zuhanyzós fürdőszoba WC-vel• A második hálószoba külön teraszkijárattal• Napfényes, DNY-i tájolás• Minden ablak a csendes udvarra nézMűszaki tartalom• Az épület az 1960-as években épült, 3 lakásosra alakítva• 2000-es bővítés• Új tetőszerkezet és cserépfedés• 5 cm polisztirol hőszigetelés a homlokzaton• Áthúzott elektromos vezetékek• Modern kondenzációs gázkazánKert és parkolás• Térköves felhajtó• Akár 3 autó is parkolhat az udvaron• A lakáshoz teljesen önálló, 400 nm-es szeparált kert tartozik
További adatok
Telekterület: 512 m2
Kert mérete: 512 m2
Erkély mérete: 8 m2
Felszereltség: -
Parkolás: -
Kilátás: -
Egyéb extrák:  
-
Hirdető adatai
Hirdető neve: Otthon Centrum
Hirdető telefonszáma: +36 70 412 5796