Zala megye, Zalaegerszeg
 

Ingatlan adatai
Irányár: 73 000 000 Ft
Típus: ház
Kategória: eladó
Alapterület: 89 m2
Fűtés: egyéb
Állapota: -
Szobák száma: 4
Építés éve: 1970
Szintek száma: -
Részletes leírás
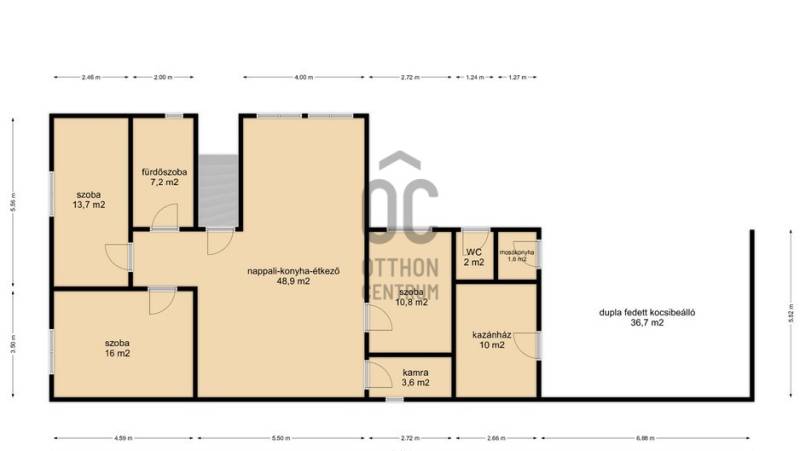
Eladásra kínálom Zalaegerszeg csácsi részén egy újra gondolt, felújítás alatt lévő nappali+ 3 szobás családi házat, melynek a jellemzői a következők:- Az ingatlan 1022 m2-es sík területen fekszik. A tágas terekkel rendelkező építmény 150,5 m2, ebből a lakótér 100,2 m2. - A ház eredetileg beton alapra tégla falakkal készült, amihez szintén ezen technikával (2024-ben) hozzáépítés történt. - A tető egésze új (lécezve, cserepezve) borítást kapott.- A ház homlokzata nincs hőszigetelve, annak megvalósítása festése az új tulajdonos feladata.- A közművek közül villany (újra vezetékelve+ H tarifa bevezetve), víz (vezetékek modernizálva), csatorna kiépítve. Gáz a telken belül található.- Fűtése vegyes tüzelésű kazánnal megoldva (1000 literes puffertartály teszi kényelmesebbé), a hőleadás padlófűtés formájában történik. Ezt kiegészítve két hűtő-fűtő klíma teszi kellemessé a lakás hőmérsékletét.- A nyílászárók fa szerkezetűek (újonnan beépített).- A házban a közösségi terek kerámia padlóburkolatot kaptak, a szobák padlózata nem készült el, azonban ezt a közeljövőben megvalósítják.- A lakóterek frissen festve, álmennyezettel ellátva.- Az egyik szobán beépített szekrény található.- A konyhabútor gépesített (mosogatógép, sütő beszerelve, főzőlap hiányzik).- fürdőszobában a szaniterek egy része (WC, piszoár), illetve a törölköző tartó radiátor megvételre került. - Az ingatlanban kamerarendszert építettek ki.- A házzal egy egységet alkotva, annak folytatásaként kialakítottak egy mosdóhelyiséget, valamint mosókonyhát, kazánházat és egy két állásos beállót is, melyek együttesen 50,3 m2-t képeznek.- Az udvar, kert rendezése az új tulajdonos fantáziájára van bízva.óMindazoknak ajánlom ezen ingatlant, akik a hagyományt modern, minden igényt kielégítő elemekkel ötvözik. Nem zavarja, ha a külső még formálódik, sőt örül annak, hogy a végső simítások az ő elképzeléseit tükrözik. Nagyra értékeli, hogy szinte azonnal beköltözhet egy megújult kertvárosi környezetbe.Ha Ön is szeretne többet megtudni erről az ingatlanról, vagy kérdései lennének, ne habozzon felkeresni minket bizalommal.Az Ön elégedettsége a legfontosabb számunkra, és örömmel segítünk Önnek a legjobb döntés meghozatalában.Irodánk teljes körű szolgáltatást nyújt kereső ügyfeleinek.Szakszerű tanácsadással, ingyenes CSOK és hitelügyintézéssel, energetikai tanúsítvány elkészítésével és kedvező díjszabású ügyvéddel nyújtunk segítséget!
További adatok
Telekterület: 1 022 m2
Kert mérete: 1 022 m2
Erkély mérete: -
Felszereltség: -
Parkolás: -
Kilátás: -
Egyéb extrák:  
-
Hirdető adatai
Hirdető neve: Otthon Centrum
Hirdető telefonszáma: +36 70 716 8171