Budapest, III.kerület
 

Ingatlan adatai
Irányár: 550 000 Ft/hó
Típus: ház
Kategória: kiadó
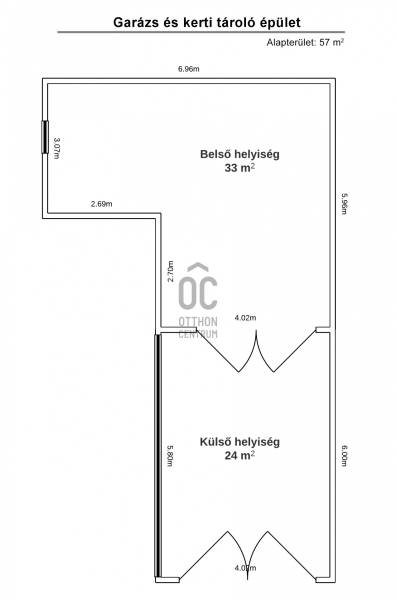
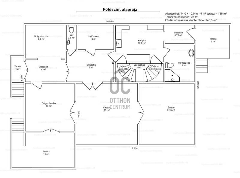
Alapterület: 200 m2
Fűtés: gáz (cirko)
Állapota: felújítást igényel
Szobák száma: 8
Építés éve: 1970
Szintek száma: -
Részletes leírás
Kiadó ház Testvérhegy – kerttel, fedett tárolóval és garázzsalBudapest III. kerületében, Testvérhegy kiváló elhelyezkedésű részén kínálunk bérbeadásra egy önálló családi házat, amely ideális választás hosszú távra cégeknek dolgozói elszállásolásra, vagy nagyobb családok számára kényelmes otthonként.A házhoz saját kert, fedett kerti tároló és garázs is tartozik, így a mindennapi használat kényelmes és jól szervezhető.A környék infrastruktúrája és közlekedése kiemelkedő: a közelben üzletek, szolgáltatások, éttermek, valamint buszmegálló található, így könnyen elérhető a város bármely pontja.A stabil környezet és a jó megközelíthetőség miatt a ház hosszú távú, megbízható bérleti lehetőséget kínál.KKV Hitelezéssel akár bérlemény felújítására is tudunk segítséget nyújtani, így akár apartmanház is kialakítható egy hosszútávú rugalmas bérleti konstrukció mellett.Ha bármi kérdése van kérem jelezzen, hogy mihamarabb tudjunk segíteni.
További adatok
Telekterület: 1 047 m2
Kert mérete: 1 047 m2
Erkély mérete: -
Felszereltség: -
Parkolás: -
Kilátás: -
Egyéb extrák:  
-
Hirdető adatai
Hirdető neve: Otthon Centrum
Hirdető telefonszáma: +36 70 716 8371