Budapest, XV.kerület
 

Ingatlan adatai
Irányár: 159 000 000 Ft
Típus: ház
Kategória: eladó
Alapterület: 159 m2
Fűtés: gáz (cirko)
Állapota: új
Szobák száma: 5
Építés éve: 2025
Szintek száma: -
Részletes leírás
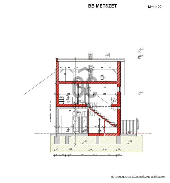
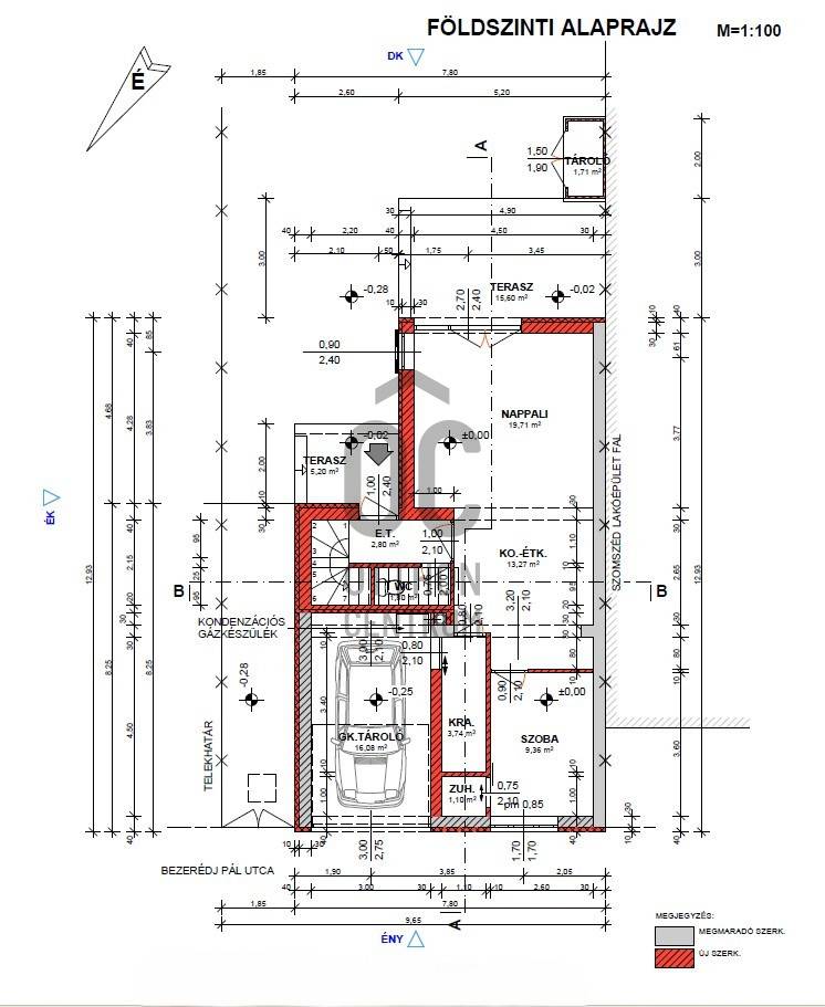
Új építésű családi ház eladó Budapest XV. kerületében, a Berezedi Pál utcában!Eladó egy kiváló elrendezésű, kétszintes, 159 m²-es családi ház 363 m²-es telken, Budapest XV. kerületének egyik csendes, rendezett utcájában, a Berezedi Pál utcában.Az ingatlan modern, energiatakarékos műszaki megoldásokkal épül, cirkó fűtéssel, korszerű hőszigeteléssel, valamint tágas, napfényes terekkel.Főbb jellemzők:• Hasznos alapterület: 159 m²• Telek mérete: 363 m²• Szintek száma: 2• Szobák száma: 5• Fűtés: cirkó• Saját garázs a ház elején, közvetlen bejárattal• Tágas nappali–konyha–étkező egy légtérben• Kertkapcsolatos terasz• Világos, jól kihasználható terekA vételár a jelenlegi, a fotókon látható készültségi állapotra vonatkozik.A tetőtér szigetelt, így kevés ráfordítással beépíthető, amellyel tovább növelhető a hasznos alapterület.Környék és elhelyezkedésA Berezedi Pál utca csendes, családi házas övezetben található, kiváló infrastruktúrával és jó közlekedéssel. A közelben:• bevásárlási lehetőségek (Lidl, Aldi, Spar)• iskolák, óvodák• orvosi rendelő, gyógyszertár• parkok, sportolási lehetőségek• buszmegállók pár perc sétára, ahonnan gyorsan elérhető az M3-as metró és a belvárosEz az ingatlan ideális választás családok számára, akik nyugodt, biztonságos környezetben szeretnének élni egy modern, új építésű otthonban, mégis elérhető távolságban a város központjától.
További adatok
Telekterület: 363 m2
Kert mérete: 363 m2
Erkély mérete: 25 m2
Felszereltség: -
Parkolás: -
Kilátás: -
Egyéb extrák:  
-
Hirdető adatai
Hirdető neve: Otthon Centrum
Hirdető telefonszáma: +36 70 716 9271