Tolna megye, Szekszárd
 

Ingatlan adatai
Irányár: 109 900 000 Ft
Típus: ház
Kategória: eladó
Alapterület: 96 m2
Fűtés: -
Állapota: új
Szobák száma: 4
Építés éve: 2025
Szintek száma: -
Részletes leírás
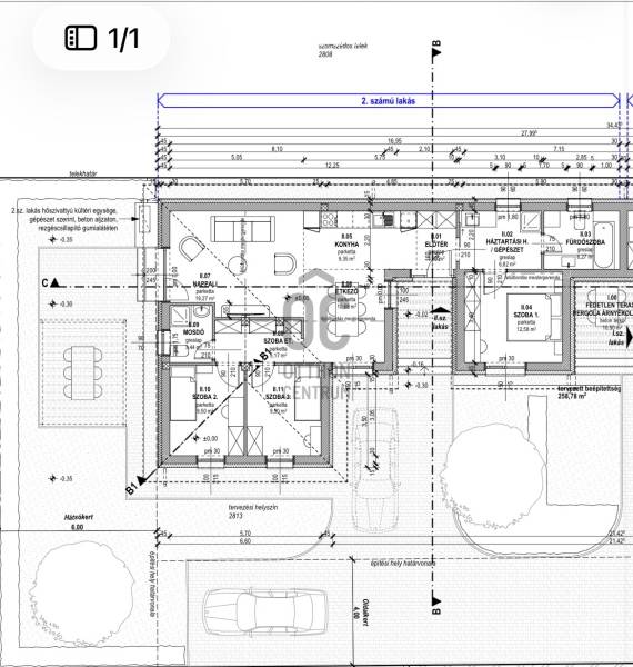
Eladó 2 lakásos ikerház Szekszárdon. Jellemzői:- 96 m2, nappali+3 szobás, városközponti- 30-as kerámia tégla falazat, 15 cm-es szigeteléssel- tetőszerkezetén betoncserép, 20 cm-es purhab szigeteléssel- 3 rétegű, hőszigetelt, műanyag nyílászárók- energiatakarékos, hőszivattyús fűtés, H tarifás, padlófűtés, mennyezeti hűtés- választható burkolatok, belső nyílászárók, szaniterek Várható műszaki átadás: 2026. májusTovábbi információért keressen bizalommal!Reg. szám: U0048628Teljes körű pénzügyi megoldások ügyintézése díjmentesen.Minden élethelyzetre végzünk pénzügyi elemzést - ha vásárolni szeretne, segítünk, hogy ezt a legjobb feltételek mellett tegye; ha eladni szeretné ingatlanát,nézzük meg, hátha érdemes meglévő hitelét átváltani.Keressen bizalommal, szakértők vagyunk!
További adatok
Telekterület: 743 m2
Kert mérete: 743 m2
Erkély mérete: -
Felszereltség: -
Parkolás: -
Kilátás: -
Egyéb extrák:  
-
Hirdető adatai
Hirdető neve: Otthon Centrum
Hirdető telefonszáma: +36 70 388 5286